Three-room apartment VIA MONTELLO 10/12, Melzo
€ 200.000
Vivi il fascino del Centro Storico in una casa tecnologicamente all'avanguardia.
Nel cuore pulsante di Melzo, a pochi passi da tutti i principali servizi, negozi e attività commerciali, proponiamo un imperdibile trilocale inserito in una mini palazzina di sole 4 unità. Lintero edificio è oggetto di una completa e profonda riqualificazione che porterà limmobile in Classe Energetica C.
La soluzione si distingue per la razionalità degli spazi e la luminosità:
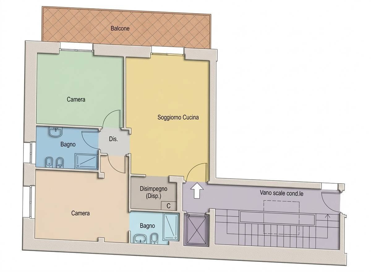
Zona Living: Soggiorno moderno con cucina a vista e accesso diretto al terrazzino privato, perfetto per godersi momenti all'aria aperta in totale privacy.
Zona Notte: Ben separata grazie al comodo disimpegno, comprende una camera singola, il bagno padronale finestrato e un'ampia camera matrimoniale dotata di secondo bagno privato (areazione forzata).
L'intervento punta sulla massima efficienza e sul risparmio:
Riscaldamento a pavimento termoautonomo.
Basse spese di gestione condominiale.
Predisposizione completa per aria condizionata e antifurto.
Hai la possibilità di scegliere i materiali dal capitolato e modificare le finiture interne per creare la casa dei tuoi sogni.
Posizione Strategica: Comodità assoluta con i servizi primari e secondari.
Privacy Totale: Solo 4 famiglie nel contesto abitativo.
Lavori ultimati entro Agosto 2026.
Possibilità di acquisto posto auto dedicato a 15.000.
Tutti i documenti ufficiali risultano visionabili su richiesta.
Le immagini dell'immobile potrebbero essere di repertorio e puramente rappresentative.
Per ulteriori informazioni contattare il seguente recapito telefonico 02/9552248 oppure scrivete a [email protected]
MELPUM CASA nasce dall' entusiasmo e professionalità di CRISTIAN FAINI, GEOMETRA ed AGENTE IMMOBILIARE DA OLTRE 25 ANNI a Melzo e nell'hinterland Milanese, con particolare attenzione al mercato immobiliare della Martesana. MELPUM CASA vi aspetta in uno spazio accogliente e professionale a MELZO, IN VIA CASANOVA 9, MELPUM CASA vi offrirà consulenza qualificata ed affidabilità nel campo dell'edilizia residenziale, commerciale ed industriale. Se per comprare CASA devi anche VENDERE il TUO immobile non esitare a contattarci per una valutazione completamente gratuita e senza vincoli, chiamaci subito per una visita senza impegno.
Nel cuore pulsante di Melzo, a pochi passi da tutti i principali servizi, negozi e attività commerciali, proponiamo un imperdibile trilocale inserito in una mini palazzina di sole 4 unità. Lintero edificio è oggetto di una completa e profonda riqualificazione che porterà limmobile in Classe Energetica C.
La soluzione si distingue per la razionalità degli spazi e la luminosità:
Zona Living: Soggiorno moderno con cucina a vista e accesso diretto al terrazzino privato, perfetto per godersi momenti all'aria aperta in totale privacy.
Zona Notte: Ben separata grazie al comodo disimpegno, comprende una camera singola, il bagno padronale finestrato e un'ampia camera matrimoniale dotata di secondo bagno privato (areazione forzata).
L'intervento punta sulla massima efficienza e sul risparmio:
Riscaldamento a pavimento termoautonomo.
Basse spese di gestione condominiale.
Predisposizione completa per aria condizionata e antifurto.
Hai la possibilità di scegliere i materiali dal capitolato e modificare le finiture interne per creare la casa dei tuoi sogni.
Posizione Strategica: Comodità assoluta con i servizi primari e secondari.
Privacy Totale: Solo 4 famiglie nel contesto abitativo.
Lavori ultimati entro Agosto 2026.
Possibilità di acquisto posto auto dedicato a 15.000.
Tutti i documenti ufficiali risultano visionabili su richiesta.
Le immagini dell'immobile potrebbero essere di repertorio e puramente rappresentative.
Per ulteriori informazioni contattare il seguente recapito telefonico 02/9552248 oppure scrivete a [email protected]
MELPUM CASA nasce dall' entusiasmo e professionalità di CRISTIAN FAINI, GEOMETRA ed AGENTE IMMOBILIARE DA OLTRE 25 ANNI a Melzo e nell'hinterland Milanese, con particolare attenzione al mercato immobiliare della Martesana. MELPUM CASA vi aspetta in uno spazio accogliente e professionale a MELZO, IN VIA CASANOVA 9, MELPUM CASA vi offrirà consulenza qualificata ed affidabilità nel campo dell'edilizia residenziale, commerciale ed industriale. Se per comprare CASA devi anche VENDERE il TUO immobile non esitare a contattarci per una valutazione completamente gratuita e senza vincoli, chiamaci subito per una visita senza impegno.
Main data
| Reference | 12043 |
| Ad date | 19/03/2026 |
| Contract | Sale |
| Typology | Apartment |
| Surface | 80 m2 |
| Locals | 3 (2 bedrooms, 1 other), 2 bathrooms, kitchen on sight |
| Plan | 1 from 2 totals |
| Garage | Absent |
Costs
| Price | 200.000 € |
| Price per m2 | 2.500 €/m2 |
Energy efficiency
| Status | Excellent |
| Heating | Autonomous |
| Heating Power Type | Other |
| Energy rating | C |
| Energy Performance Index (IPE) | - |
Floor plans
Address and map
VIA MONTELLO
10/12, Melzo
Ad without map,
try asking the advertiser for the position
try asking the advertiser for the position
Mortgage calculation
Selling price:
Advance
20,00
Mortgage
80,00
Rate: -+
Payment: 572 per month
The results are an indicative estimate based on the data entered and do not constitute a financial offer.
Advertiser

MELPUMCASA
Casanova,9, Melzo
Show Phone
Call
CONTACT

