Three-room apartment Via Visconti, Cernusco sul Naviglio
€ 345.000Trilocale in vendita
L'appartamento si trova al terzo e ultimo piano di una palazzina dotata di ascensore in zona verde e residenziale, a pochi minuti a piedi dal centro storico e con ampio giardino condominiale.
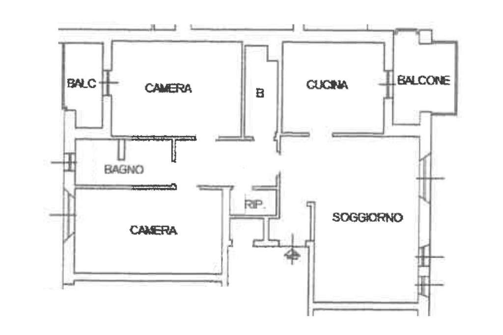
In ottime condizioni, gode di un'esposizione sud per il comodo soggiorno con zona pranzo e per la cucina abitabile aperta su un terrazzino dotato di tende da sole e affacciato sul verde condominiale.
Un ampio disimpegno porta alla zona notte con esposizione nord, composta dalle due camere matrimoniali con parquet, il bagno finestrato con vasca e il secondo bagno cieco, sfruttabile come lavanderia, oltre ad un pratico ripostiglio.
Il pavimento, ad eccezione di camere e cucina, è in marmo, gli infissi sono doppio vetro legno, inferriate sulle porte finestre dei balconi, aria condizionata canalizzata per tutto l'appartamento. Termoautonomo.
Box singolo e cantina inclusi nella richiesta.
Le informazioni, le immagini, le planimetrie e, più in generale, quanto inserito nel presente annuncio non costituiscono elemento contrattuale.
In ottime condizioni, gode di un'esposizione sud per il comodo soggiorno con zona pranzo e per la cucina abitabile aperta su un terrazzino dotato di tende da sole e affacciato sul verde condominiale.
Un ampio disimpegno porta alla zona notte con esposizione nord, composta dalle due camere matrimoniali con parquet, il bagno finestrato con vasca e il secondo bagno cieco, sfruttabile come lavanderia, oltre ad un pratico ripostiglio.
Il pavimento, ad eccezione di camere e cucina, è in marmo, gli infissi sono doppio vetro legno, inferriate sulle porte finestre dei balconi, aria condizionata canalizzata per tutto l'appartamento. Termoautonomo.
Box singolo e cantina inclusi nella richiesta.
Le informazioni, le immagini, le planimetrie e, più in generale, quanto inserito nel presente annuncio non costituiscono elemento contrattuale.
Main data
| Reference | 61193792 |
| Ad date | 18/03/2026 |
| Contract | Sale |
| Typology | Apartment |
| Surface | 99 m2 |
| Locals | 3 (3 other), 2 bathrooms |
| Plan | 3 from 3 totals |
Costs
| Price | 345.000 € |
| Price per m2 | 3.485 €/m2 |
| Condominium fees | €167,00/month |
Energy efficiency
| Year built | 1981 |
| Heating | Autonomous |
| Heating Power Type | Methane |
| Energy rating | D |
| Energy performance index (EP GL, REN ) | 9.66 kWh/m3 year |
| Energy performance index (EP GL, NREN ) | 107.42 kWh/m3 year |
Floor plans
Address and map
Via Visconti, Cernusco sul Naviglio
Mortgage calculation
Selling price:
Advance
20,00
Mortgage
80,00
Rate: -+
Payment: 987 per month
The results are an indicative estimate based on the data entered and do not constitute a financial offer.
Advertiser
Call
CONTACT

