Villa Via Ugolino Vivaldi 12, Lecce
€ 200.000
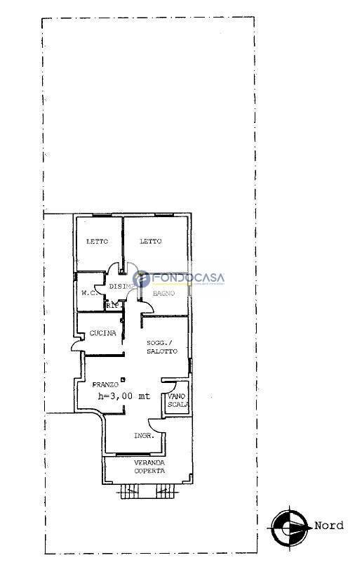
Villa Unifamiliare con giardino a San Cataldo Via Ugolino Vivaldi Lagenzia Fondocasa sede di Maglie propone in vendita splendida villa unifamiliare situata a San Cataldo, precisamente in Via Ugolino Vivaldi, in contesto tranquillo e riservato, a brevissima distanza dal mare. La proprietà si sviluppa su due livelli per una superficie complessiva di ampia metratura. Il piano rialzato, di 147 mq, si presenta in ottime condizioni abitative ed è pronto da vivere. Lingresso è ampio e accogliente, la cucina è abitabile e ben organizzata, la sala da pranzo luminosa e funzionale. La zona notte comprende due spaziose camere da letto e due bagni, garantendo comfort e praticità per tutta la famiglia. Il piano seminterrato, di 160 mq, rappresenta un grande valore aggiunto per la sua versatilità. Gli spazi consentono la realizzazione di due mini appartamenti indipendenti, soluzione ideale per chi desidera investire o ospitare familiari in totale autonomia. In alternativa, può essere utilizzato come tavernetta, studio professionale o deposito, adattandosi a qualsiasi esigenza. Punto di forza dellimmobile è il giardino di esclusiva proprietà che circonda la villa, elemento che ne sottolinea la totale indipendenza e garantisce privacy, tranquillità e piacevoli momenti allaperto. Ulteriore valore aggiunto è la stretta vicinanza al mare, caratteristica che rende questa soluzione particolarmente interessante sia come abitazione principale sia come casa vacanza. Una proposta ideale per chi è alla ricerca di indipendenza, ampi spazi e posizione strategica a pochi passi dal mare. Per maggiori informazioni o per fissare una visita, contatta Fondocasa Maglie. Saremo lieti di accompagnarti nella scelta della tua nuova casa.
Main data
| Reference | 83 |
| Ad date | 18/03/2026 |
| Contract | Sale |
| Typology | Villa |
| Surface | 285 m2 |
| Locals | 4 (2 bedrooms, 2 other), 2 bathrooms, kitchen habitable |
| Plan | Mezzanine |
| Construction type | Average |
| Occupied | Free |
| Garage | Triple |
Costs
| Price | 200.000 € |
| Price per m2 | 702 €/m2 |
Energy efficiency
| Heating | Autonomous |
| Heating Power Type | Other |
| Energy rating | F |
| Energy Performance Index (IPE) | - |
Floor plans
Address and map
Via Ugolino Vivaldi
12, Lecce
Ad without map,
try asking the advertiser for the position
try asking the advertiser for the position
Mortgage calculation
Selling price:
Advance
20,00
Mortgage
80,00
Rate: -+
Payment: 572 per month
The results are an indicative estimate based on the data entered and do not constitute a financial offer.
Advertiser

MAGLIE
via Piave, 71, Maglie
Show Phone
Show Mobile
Call
CONTACT

