Attic Piazza Cesare Terranova 5, Parabita
€ 300.000
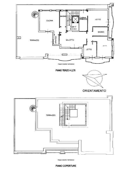
PUGLIA - SALENTO - PARABITA (LECCE) Attico di prestigio in centro a Parabita Terzo Piano con ascensore ed ampie terrazze Nel cuore di Parabita, al terzo piano di un elegante e signorile stabile costruito nel 2007, proponiamo in vendita un attico unico nel suo genere, rifinito con materiali di altissima qualità e pensato per chi cerca comfort, stile e privacy. Caratteristiche principali: Ingresso su ampia zona living luminosa, con pavimenti in parquet e inserti in marmo di pregio (cornice Siena e marmo azzurro brasiliano a contrasto), elegante e accogliente. Affaccio su balcone principale collegato alla prima terrazza a livello, perfetta per pranzi allaperto e momenti di relax. Cucina abitabile, spaziosa e molto luminosa, con accesso diretto alla terrazza e ai balconi che circondano lintero appartamento. Una raffinata porta in vetro satinato decorata artigianalmente separa la zona giorno dalla zona notte. Zona notte: Camera matrimoniale con adiacente locale adibito a cabina armadio Seconda camera matrimoniale e cameretta Due bagni completi, rifiniti con cura Piano superiore: Comoda zona lavanderia Ulteriore area destinata a cabina armadio Affaccio su un grande terrazzo panoramico, ideale per la creazione di una piscina idromassaggio con angolo bar, per vivere la casa anche come unoasi di relax privata Dettagli costruttivi di pregio: Infissi esterni in legno Douglas con vetrocamera Persiane esterne in alluminio Porte interne in legno massello con raffinate bugnature Ottima esposizione e luminosità naturale tutto il giorno Posizione strategica Lattico si trova in zona centralissima di Parabita, ben servita da negozi, scuole, servizi pubblici, a pochi minuti dalle principali arterie stradali e a 15 minuti dal mare di Gallipoli. Superficie e info aggiuntive Superficie interna: m² 160 Superficie terrazze e balconi: m² 320 Riscaldamento autonomo ad aria Se cerchi un attico elegante e pronto da vivere, con spazi generosi e una terrazza da sogno, questa è loccasione perfetta. Contattaci per ricevere maggiori informazioni o per fissare un appuntamento.
Main data
| Reference | CBI159-2976-63828 |
| Ad date | 18/03/2026 |
| Contract | Sale |
| Typology | Attic |
| Surface | 256 m2 |
| Locals | 5 (3 bedrooms, 2 other), 2 bathrooms, kitchen habitable |
| Plan | 3 from 3 totals |
| Construction type | Signorile |
| Occupied | Free |
| Garage | Absent |
| Furniture | Absent |
Costs
| Price | 300.000 € |
| Price per m2 | 1.172 €/m2 |
Energy efficiency
| Status | Excellent |
| Heating | Autonomous |
| Heating System Type | by air |
| Energy rating | D |
| Energy Performance Index (IPE) | 209 kWh/m2 year |
Floor plans
Virtual tour
Address and map
Piazza Cesare Terranova
5, Parabita
Ad without map,
try asking the advertiser for the position
try asking the advertiser for the position
Mortgage calculation
Selling price:
Advance
20,00
Mortgage
80,00
Rate: -+
Payment: 858 per month
The results are an indicative estimate based on the data entered and do not constitute a financial offer.
Advertiser
Call
CONTACT


