Apartment Via Della Croce 2, Taranto
€ 46.000
PUGLIA - TARANTO VIA DELLA CROCE
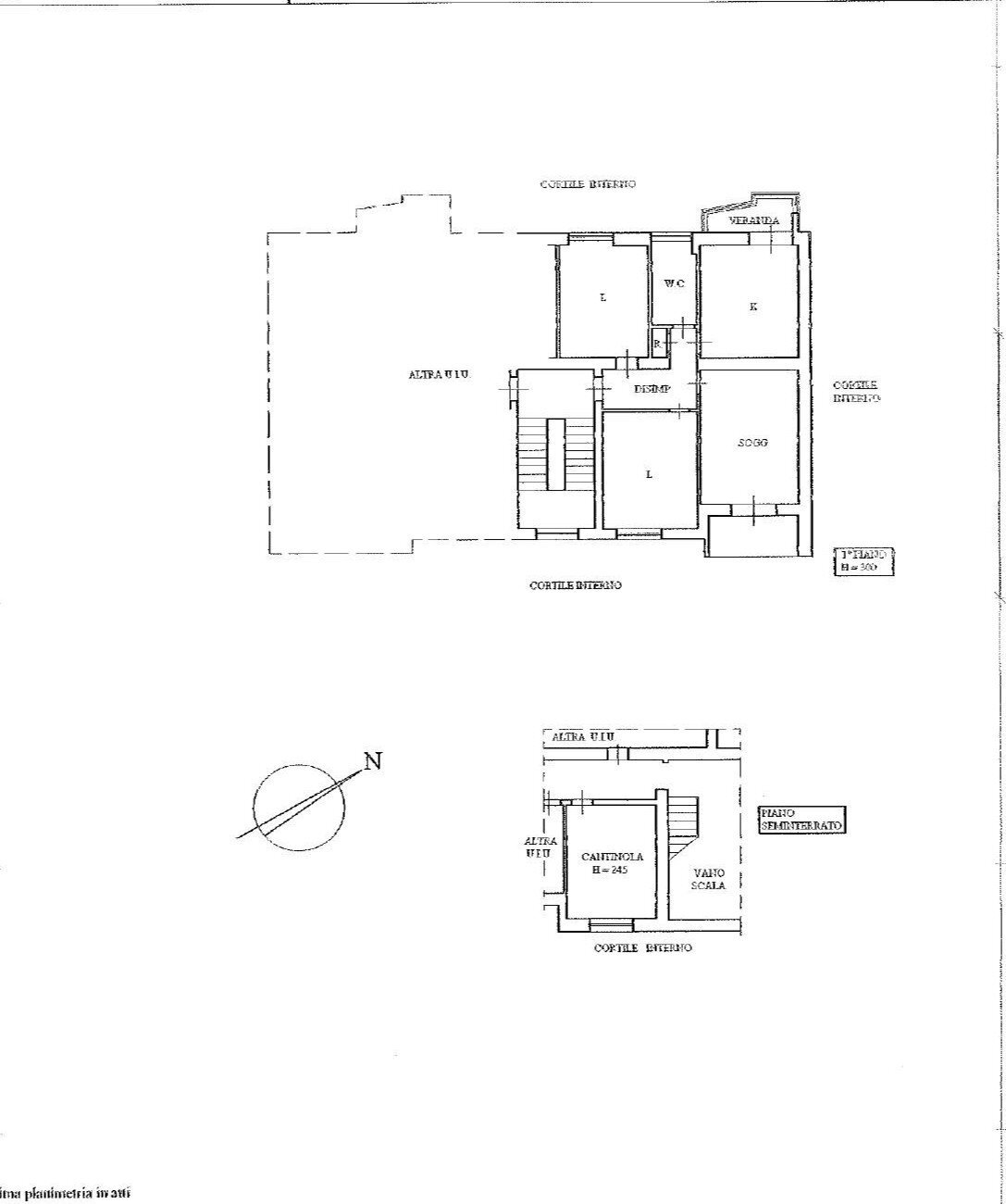
Proponiamo in vendita appartamento sito in Taranto Rione Tamburi in Via Della Croce 2, posto al primo piano di stabile tranquillo, della superficie di circa 110 mq. L'immobile si presenta con ambienti luminosi e ben distribuiti ed è così composto:
ingresso accogliente, un ampio e luminoso soggiorno, due comode camere da letto, bagno, una cucina abitabile con veranda e ripostiglio.
Completa la proprietà una cantinola di pertinenza ideale come spazio deposito. Spazi confortevoli in una zona ben servita e vista mare.
Proponiamo in vendita appartamento sito in Taranto Rione Tamburi in Via Della Croce 2, posto al primo piano di stabile tranquillo, della superficie di circa 110 mq. L'immobile si presenta con ambienti luminosi e ben distribuiti ed è così composto:
ingresso accogliente, un ampio e luminoso soggiorno, due comode camere da letto, bagno, una cucina abitabile con veranda e ripostiglio.
Completa la proprietà una cantinola di pertinenza ideale come spazio deposito. Spazi confortevoli in una zona ben servita e vista mare.
Main data
| Reference | CBI150-2567-63990 |
| Ad date | 18/03/2026 |
| Contract | Sale |
| Typology | Apartment |
| Surface | 110 m2 |
| Locals | 5 (2 bedrooms, 3 other), 1 bathroom, kitchen habitable |
| Plan | 1 from 2 totals |
| Construction type | Popular |
| Occupied | Owner Occupied |
| Garage | Absent |
Costs
| Price | 46.000 € |
| Price per m2 | 418 €/m2 |
Energy efficiency
| Status | To be restored |
| Heating | Absent |
| Heating Power Type | Other |
| Energy rating | C |
| Energy Performance Index (IPE) | 110 kWh/m2 year |
Floor plans
Address and map
Via Della Croce
2, Taranto
Ad without map,
try asking the advertiser for the position
try asking the advertiser for the position
Mortgage calculation
Selling price:
Advance
20,00
Mortgage
80,00
Rate: -+
Payment: 132 per month
The results are an indicative estimate based on the data entered and do not constitute a financial offer.
Advertiser
Call
CONTACT


