Independent house borgata Prissolo, 24, Sciolze
€ 240.000Casa indipendente con terreno
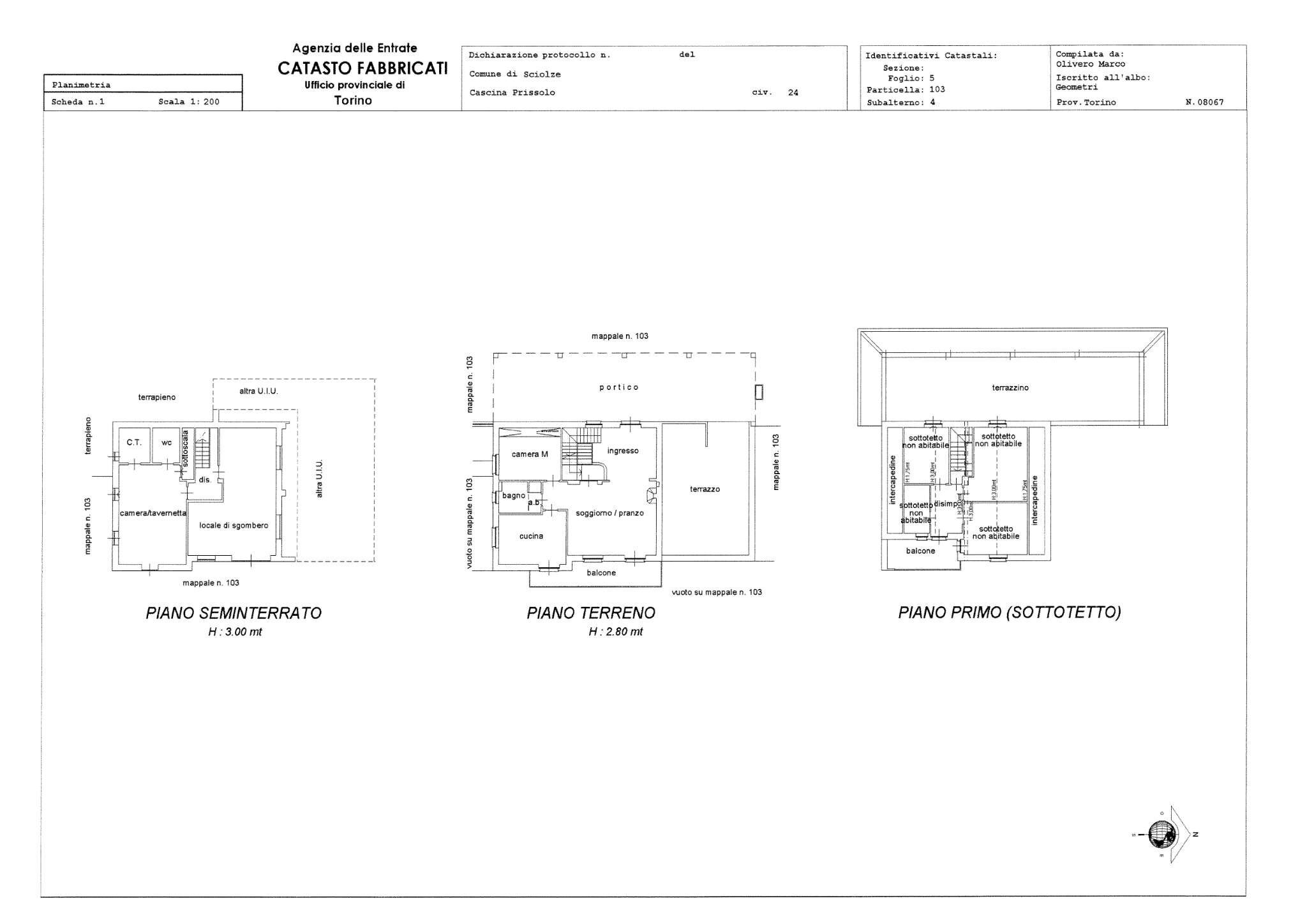
Immersa nel verde delle colline di Sciolze, proponiamo in vendita una splendida casa indipendente con ampio terreno circostante (circa 4.000 mq), ideale per chi desidera tranquillità, privacy e un contesto naturale di assoluto pregio. L’immobile, in buone condizioni generali, si sviluppa su tre livelli. L'ingresso alla proprietà avviene attraverso l'ampio porticato che si estende lungo la parte frontale del piano terreno e introduce al comodo disimpegno dal quale si accede all'ampia zona soggiorno e sala da pranzo, luminosa e con affaccio diretto sia sul balcone che sull’incantevole panorama collinare. La cucina abitabile, anch’essa collegata al balcone, risulta spaziosa e funzionale. Completano il piano un bagno con antibagno e una camera da letto matrimoniale. Lateralmente alla casa, sullo stesso livello, si trova un grande terrazzo con vista aperta sulle colline circostanti: uno spazio perfetto per pranzi all’aperto e momenti di relax. Il primo piano ospita tre locali accessori e un secondo bagno. Due delle camere si affacciano su un ampio terrazzo panoramico, mentre la terza dispone di un balcone privato, garantendo luminosità e accessi esterni a tutti gli ambienti. Al piano seminterrato trova spazio una comoda tavernetta completamente rifinita e fuori terra, ideale come seconda zona giorno. Sono inoltre presenti un bagno, la centrale termica, un ripostiglio e un grande locale di sgombero/cantina, che grazie alle dimensioni generose e alla possibilità di rifinirlo può diventare una sala hobby, palestra o home cinema. A completare la proprietà un’autorimessa doppia, perfetta per due vetture e per ulteriore spazio di deposito. La soluzione rappresenta un’opportunità rara per chi cerca una casa indipendente immersa nella natura ma comunque comoda ai servizi, con ampi spazi interni ed esterni e un potenziale di valorizzazione molto interessante. Per info e appuntamento potete contattarci tel. 0119602644 o inviare mail a [email protected]. La Corten&Grey Immobiliare si propone come consulente ideale per chi vuole offrire o cercare un immobile, segue il cliente in ogni fase offrendo servizio di intermediazione per acquisizione, vendita o locazione; consulenza tecnico legale, assistenza alla gestione dei mutui, consulenza di architetti, ingegneri, professionisti per la ristrutturazione o l'arredamento servizio di pratiche amministrative edilizie.
Main data
| Reference | ID2998662 |
| Ad date | 20/11/2025 |
| Contract | Sale |
| Typology | Independent house |
| Surface | 266 m2 |
| Locals | 5 (1 bedroom, 4 other), 3 bathrooms, kitchen habitable |
| Plan | 3 totals |
| Construction type | Civil |
| Number of terraces | 2 |
| Number of balconies | 2 |
| Garage | Triple |
Costs
| Price | 240.000 € |
| Price per m2 | 902 €/m2 |
Energy efficiency
| Year built | 1975 |
| Heating | Autonomous |
| Heating Power Type | Diesel |
| Energy rating | Property exempt from energy certification |
Floor plans
Address and map
borgata Prissolo, 24, Sciolze
Mortgage calculation
Selling price:
Advance
20,00
Mortgage
80,00
Rate: -+
Payment: 686 per month
The results are an indicative estimate based on the data entered and do not constitute a financial offer.
Advertiser
Call
CONTACT


