Four-room apartment via Carlo Alberto, Monza
€ 590.000ELEGANTE QUADRILOCALE - CENTRO STORICO MONZA
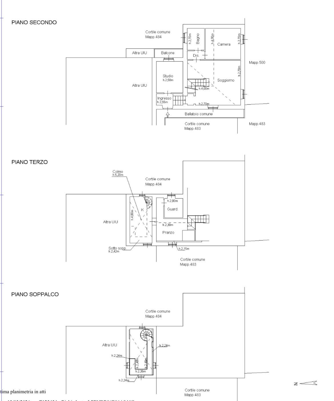
VIA CARLO ALBERTO Nel cuore più autentico del centro storico di Monza, nella rinomata e suggestiva via Carlo Alberto, proponiamo in vendita elegante e luminoso appartamento ristrutturato di mq 140, situato all'interno di un silenzioso contesto signorile di corte interna, impreziosita da suggestiva vista panoramica. La proprietà si sviluppa su due livelli abitativi (piani 2' e 3'), oltre a piano soppalco, soluzione architettonica che dona movimento e luminosità agli ambienti e conferisce alla abitazione un carattere unico e ricercato. L'ingresso, posto al piano secondo, introduce in un elegante disimpegno, dal quale si accede ad una prima ampia camera con balcone, adibita a studio. Da qui si sviluppa il luminoso soggiorno, valorizzato da importante altezza interna. Il livello ospita inoltre una camera da letto, un bagno finestrato ed un ulteriore disimpegno. Una scala interna conduce al terzo piano, dove si sviluppa la zona giorno superiore, composta da cucina e sala da pranzo, affiancate da camera adibita a guardaroba. Proseguendo tramite una scala a chiocciola, si raggiunge il piano soppalco, uno spazio versatile che può essere utilizzato come zona relax, studio creativo od ulteriore zona notte, valorizzato dalle altezze (4.80 m) e dalla particolare conformazione del tetto. L'immobile si colloca nel cuore del rinomato Carlo Alberto District, raffinato e vivace quartiere del centro storico di Monza, animato da boutique, caffè, ristoranti e da numerose iniziative ed eventi culturali di prestigio, che contribuiscono a rendere la zona dinamica e ricercata. La posizione coniuga la vitalità ed il fascino della zona con la tranquillità della corte interna in cui è inserita la proprietà, che garantisce un'atmosfera riservata e silenziosa, a pochi passi dal Duomo, dal Palazzo dell'Arengario e dai principali servizi della città. Valore della proposta € 590.000,00. Per informazioni ed appuntamenti, contattare 328.1398180 oppure 3465390851. REPORT IMMOBILIARE [email protected] REPORTIMMOBILIARE.IT INCARICO IN ESCLUSIVA.
Main data
| Reference | REPORT_Monza_Carlo Alberto |
| Ad date | 16/03/2026 |
| Contract | Sale |
| Typology | Apartment |
| Surface | 140 m2 |
| Locals | 4 (2 bedrooms, 2 other), 1 bathroom, kitchen habitable |
| Plan | 3 totals |
| Construction type | Signorile |
| Number of balconies | 1 |
Costs
| Price | 590.000 € |
| Price per m2 | 4.214 €/m2 |
| Condominium fees | €100,00/month |
Energy efficiency
| Year built | 1900 |
| Status | Excellent |
| Heating | Autonomous |
| Energy rating | D |
| Energy Performance Index (IPE) | 175 kWh/m2 year |
Floor plans
Address and map
via Carlo Alberto, Monza
Mortgage calculation
Selling price:
Advance
20,00
Mortgage
80,00
Rate: -+
Payment: 1.687 per month
The results are an indicative estimate based on the data entered and do not constitute a financial offer.
Advertiser

Report Immobiliare
Via D'Azeglio 78, Bologna
Show Phone
Call
CONTACT

