Rustic via dei mille 132, Castelfranco Emilia
€ 275.000
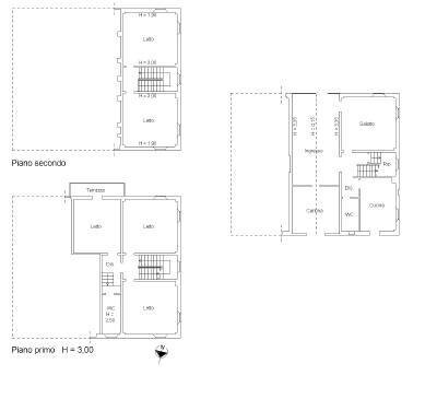
Rif. 14046 Ampio rustico indipendente con circa 5.000 mq di area cortiliva Piumazzo GEA Immobiliare propone in vendita, nella tranquilla campagna di Piumazzo, un ampio rustico indipendente disposto su tre livelli, caratterizzato da grandi spazi, ideale per chi desidera vivere immerso nella natura senza rinunciare alla comodità dei servizi. La proprietà si trova infatti in posizione strategica, vicina ai principali servizi e ben collegata alle strade principali, permettendo di raggiungere facilmente i centri. Labitazione principale è così composta: Piano terra Ingresso Cucina abitabile Soggiorno Bagno finestrato Primo piano 3 camere da letto Bagno Secondo piano 2 camere da letto Completano la proprietà diverse pertinenze, che offrono ampie possibilità di utilizzo e valorizzazione: 2 depositi/magazzini Ex - Porcilaia Cantina Stalla Fienile A circondare la proprietà troviamo circa 5.000 mq di area cortiliva privata, perfetta per chi cerca ampi spazi esterni, per realizzare un grande giardino, un orto o per chi desidera recuperare e valorizzare il complesso. Soluzione ideale per famiglie che cercano indipendenza e grandi metrature, oppure per chi desidera realizzare un progetto di ristrutturazione con molte potenzialità. Prezzo richiesto: 275.000 Per informazioni e visite: Tecla Degliesposti 351 5815636 GEA Immobiliare
Main data
| Reference | 14046 |
| Ad date | 18/03/2026 |
| Contract | Sale |
| Typology | Rustic |
| Surface | 359 m2 |
| Locals | more than 5 (5 bedrooms, 3 other), 2 bathrooms, kitchen habitable |
| Occupied | Free |
| Garage | Double |
Costs
| Price | 275.000 € |
| Price per m2 | 766 €/m2 |
Energy efficiency
| Status | To be restored |
| Heating Power Type | Other |
| Energy rating | Property exempt from energy certification |
Floor plans
Address and map
via dei mille
132, Castelfranco Emilia
Ad without map,
try asking the advertiser for the position
try asking the advertiser for the position
Mortgage calculation
Selling price:
Advance
20,00
Mortgage
80,00
Rate: -+
Payment: 786 per month
The results are an indicative estimate based on the data entered and do not constitute a financial offer.
Advertiser
Call
CONTACT


