Rustic Costigliole d'Asti
€ 149.000Tra Langa e Monferrato
Chicasa.it in collaborazione con HousesInPiedmont propongono in vendita un cascinale completamente indipendente con terreno circostante di 3.200 mq. La struttura è in mattone tipico del Piemonte con scala centrale e disposto su due livelli. La cascina si trova a 5 minuti da Neive e da Canelli, nel Comune rinomato di Costigliole d’Asti famoso per i sui Castelli. La proprietà è molto luminosa, godendo di un’esposizione ottima non avendo altre abitazione nell’immediata vicinanza, rendendola perciò riservata e confortevole. L’abitazione è sui 2 piani per una metratura complessiva di circa 250 mq. Non lasciarti sfuggire questa occasione unica di acquistare un casale, perfetto sia come abitazione principale che come investimento. Contattaci oggi stesso per ulteriori informazioni o per prenotare una visita. Per ulteriori informazioni ESCLUSIVAMENTE IN UFFICIO contattateci al Tel. +39.0173. 287373 scriveteci tramite WhatsApp al numero 3922138981 invia un’email [email protected] Potete Visionare altre nostre proposte ed occasioni immobiliari sui nostri siti: www.chicasa.it www.housesinpiedmont.com Il nostro Gruppo Immobiliare si avvale esclusivamente di Agenti Immobiliari abilitati e provvisti di Polizza Assicurativa contro i rischi professionali. Affidarsi a professionisti qualificati è fondamentale per garantire una compravendita sicura ed evitare i rischi legati agli agenti immobiliari abusivi. Per qualsiasi informazione o per fissare una visita senza impegno, non esitare a contattarci ai recapiti sopra indicati.
Main data
| Reference | CST168 |
| Ad date | 03/03/2026 |
| Contract | Sale |
| Typology | Rustic |
| Surface | 303 m2 |
| Locals | more than 5 (4 bedrooms, 6 other), 2 bathrooms, kitchen habitable |
| Plan | 2 totals |
| Construction type | Average |
| Number of balconies | 1 |
| Garage | Double |
| Number of parking spaces | 2 |
| Furniture | Absent |
Costs
| Price | 149.000 € |
| Price per m2 | 492 €/m2 |
Energy efficiency
| Status | To be restored |
| Heating | Autonomous |
| Energy rating | G |
| Energy Performance Index (IPE) | 470.01 kWh/m2 year |
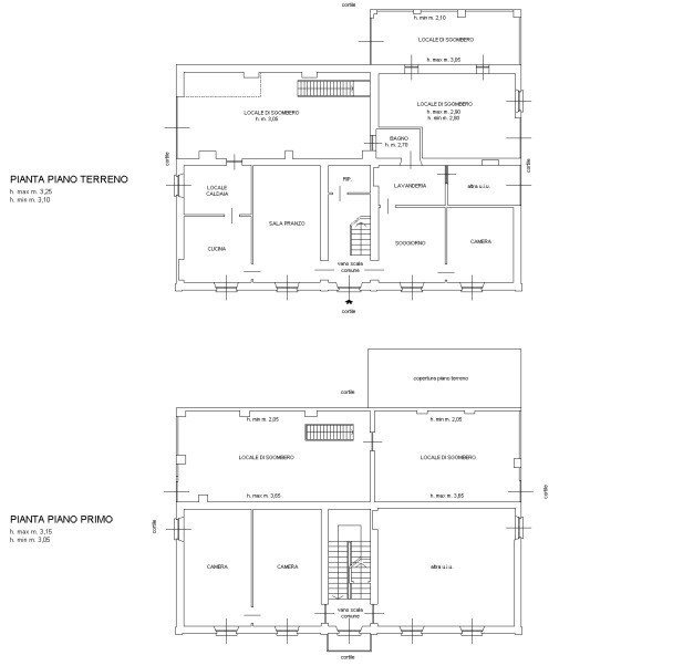
Floor plans
Address and map
Costigliole d'Asti
Ad without map,
try asking the advertiser for the position
try asking the advertiser for the position
Mortgage calculation
Selling price:
Advance
20,00
Mortgage
80,00
Rate: -+
Payment: 426 per month
The results are an indicative estimate based on the data entered and do not constitute a financial offer.
Advertiser
Call
CONTACT


