Warehouse Genova (neighborhood Sampierdarena)
€ 1.500 per monthMagazzino-laboratorio Via Sampierdarena- Genova
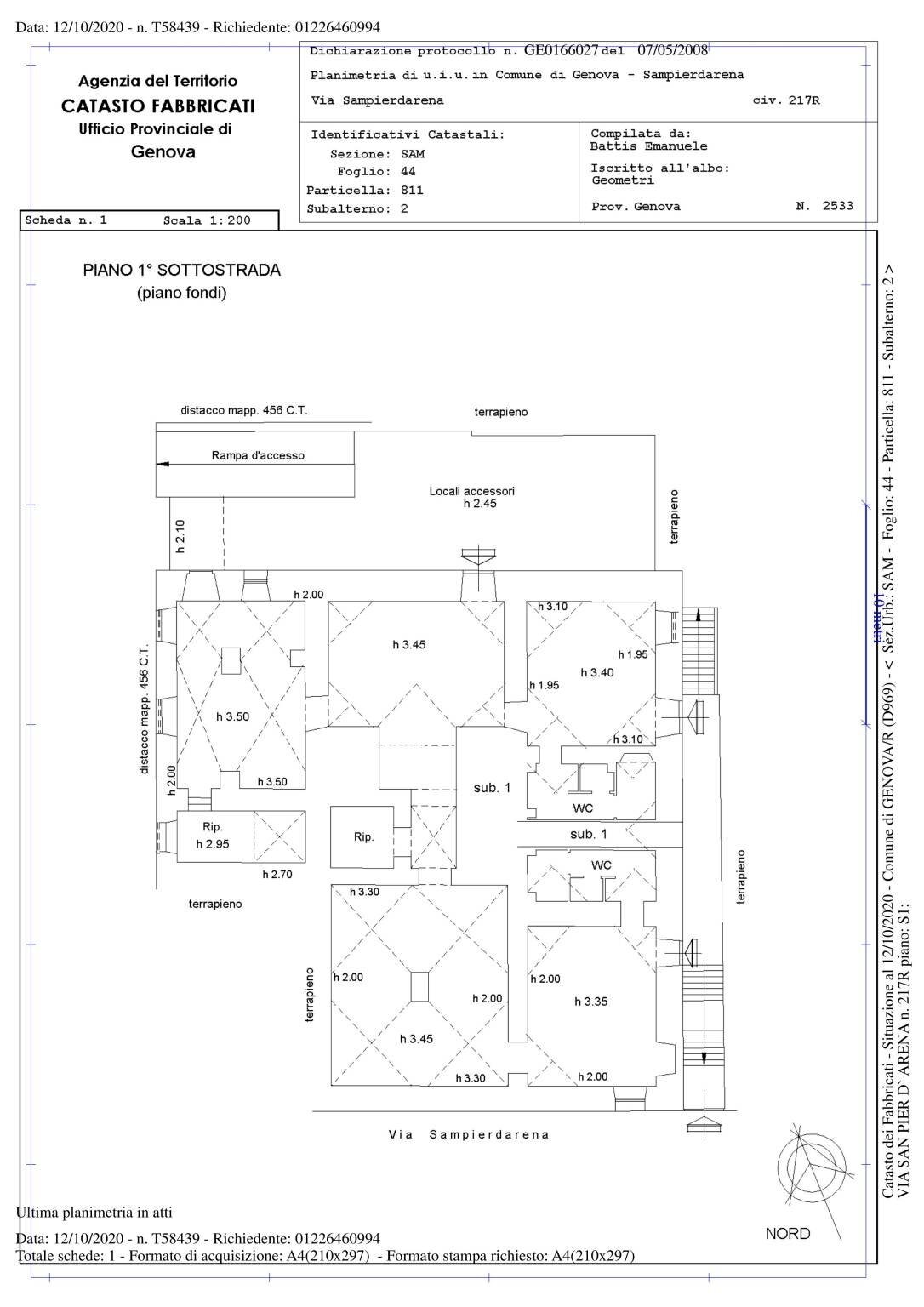
Proponiamo in locazione un archivio/deposito situato in Via Sampierdarena, al piano fondi di Villa Pallavicini. L'immobile dispone di accesso carrabile con possibilità di parcheggio per 2/3 auto, oltre a ingresso pedonale indipendente e uscita di sicurezza. Considerata la tipologia dell’immobile e le modalità di accesso, il deposito è particolarmente adatto per materiale di piccole dimensioni. Un ulteriore possibile utilizzo potrebbe essere per attività musicali o sala prove, in quanto l’edificio, risalente al XVI secolo, presenta muri molto spessi che garantiscono un buon isolamento acustico verso l’esterno. Inoltre il locale è dotato di condizionamento e riscaldamento con pompe di calore. Rivolgersi all'Immobiliare Ca.Sa. sas tel. 010593295; cell. 3939864684 www.casasas.net Planimetria, superfici, e tutti i dati degli immobili qui pubblicati, sono prettamente indicativi e non potranno essere utilizzati come parte integrante di un eventuale contratto sia di vendita che locazione della proprietà. La descrizione ha valore puramente indicativo e non costituisce elemento contrattuale.
Main data
| Reference | ID2997362 |
| Ad date | 07/03/2026 |
| Contract | Rent |
| Typology | Warehouse |
| Surface | 400 m2 |
| Plan | 1 totals |
| Real estate use | Commercial and Industrial |
Costs
| Price | 1.500 € per month |
Energy efficiency
| Energy rating | Property exempt from energy certification |
Floor plans
Address and map
Genova - neighborhood Sampierdarena
Ad without map,
try asking the advertiser for the position
try asking the advertiser for the position
Advertiser
Call
CONTACT


