Terraced Villa via Pietro Nenni, 13, Verucchio
€ 315.000VILLA A VERUCCHIO Villetta a Schiera di Testa
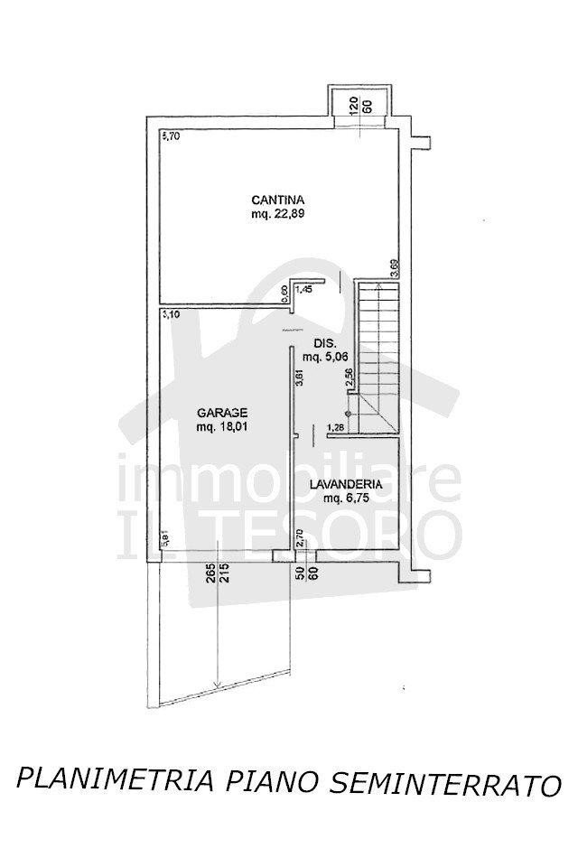
In posizione residenziale proponiamo in vendita una villetta a schiera di testa con ambienti ampi e luminosi e una metratura generosa, distribuiti su più livelli. Dall’ingresso si accede alla corte esterna recintata, con un grazioso vialetto che conduce al piano rialzato. Qui si sviluppa la zona giorno: un soggiorno spazioso con camino, affiancato da una cucina abitabile separata che si apre su una terrazza verandata, perfetta per pranzi estivi all’aperto o momenti di relax. Il disimpegno collega questi ambienti a un bagno funzionale, comodamente accessibile dalla zona giorno. Al piano superiore troviamo tre camere da letto, un disimpegno, il bagno principale e una terrazza collegata a una delle camere, ideale per godersi la vista e la tranquillità del contesto. La mansarda ospita un ambiente versatile, servito da un bagno, perfetto come studio o area hobby. Al piano seminterrato si sviluppa il garage con comoda rampa di accesso dalla corte privata, la lavanderia e una cantina capiente, ideale per organizzare tutto ciò che serve senza rinunciare allo spazio. Una villetta con ambienti luminosi, ampia metratura su più livelli e posizione comoda, vicino a tutti i principali servizi. Presente l'impianto di aspirazione centralizzato. Se desideri avere maggiori informazioni non esitare a contattarci! Agenzia Immobiliare IL TESORO: ➤ Villa Verucchio (RN) Piazzetta Valle del Marecchia 1. ☎ Tel: 0541.677217 ✎ E-mail: [email protected] ☛ Sito Web: www.immobiliareiltesoro.it
Main data
| Reference | C052 |
| Ad date | 09/03/2026 |
| Contract | Sale |
| Typology | Terraced Villa |
| Surface | 215 m2 |
| Locals | more than 5 (3 bedrooms, 4 other), 3 bathrooms, kitchen habitable |
| Plan | 4 totals |
| Construction type | Average |
| Number of terraces | 1 |
| Number of balconies | 1 |
| Garage | Single |
| Furniture | Absent |
Costs
| Price | 315.000 € |
| Price per m2 | 1.465 €/m2 |
Energy efficiency
| Status | Good |
| Heating | Autonomous |
| Energy rating | Property exempt from energy certification |
Floor plans
Address and map
via Pietro Nenni, 13, Verucchio
Mortgage calculation
Selling price:
Advance
20,00
Mortgage
80,00
Rate: -+
Payment: 901 per month
The results are an indicative estimate based on the data entered and do not constitute a financial offer.
Advertiser
Call
CONTACT


