Commercial Premises Via Ugo La Malfa 6, Palermo
€ 9.000 per month
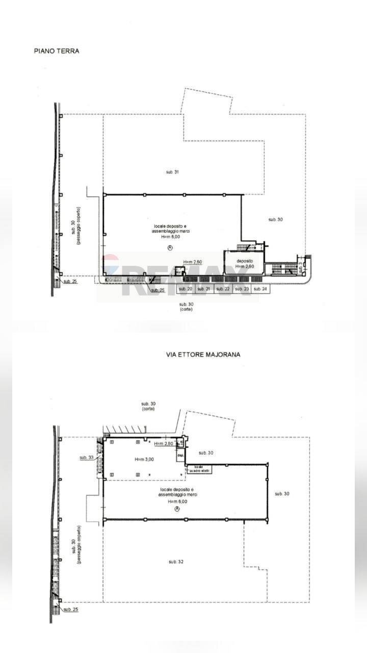
IN AFFITTO CAPANNONE INDUSTRIALE - 1.300 MQ - RISTRUTTURATO - A 200 M DALL'AUTOSTRADA Posizione strategica e massima funzionalità! Proponiamo in locazione capannone industriale , completamente ristrutturato, situato in zona industriale ad alta vocazione commerciale, a soli 200 metri dallingresso autostradale, ideale per logistica, deposito o attività produttive. 📍 Caratteristiche principali: Superficie: 1.300 mq Altezza interna: 6,80 metri Destinazione duso D/8 (fabbricati costruiti o adattati per speciali esigenze di unattività industriale) Struttura completamente rinnovata Ampia area di manovra Posti auto riservati Ottima accessibilità anche per mezzi pesanti Due ingressi Ampi Uffici 📌 Vantaggi della posizione: Vicinanza immediata allautostrada (200 metri dallingresso) Zona industriale con forte passaggio e presenza di aziende consolidate Visibilità diretta da arterie principali Perfettamente collegato a tangenziali e rete autostradale Inserito in un contesto produttivo e commerciale attivo 💼 Ideale per: aziende di logistica, distribuzione, commercio allingrosso, showroom, magazzino o attività industriali/artigianali. 📞 Contattaci per maggiori informazioni o per organizzare una visita.
Main data
| Reference | 22841095-160 |
| Ad date | 18/03/2026 |
| Contract | Rent |
| Typology | Commercial Premises |
| Surface | 1300 m2 |
| Locals | 2 (2 other), 5 bathrooms |
| Plan | Mezzanine, 1 totals |
| Occupied | Free |
| Furniture | Absent |
Costs
| Price | 9.000 € per month |
Energy efficiency
| Status | Excellent |
| Heating | Autonomous |
| Energy rating | F |
| Energy Performance Index (IPE) | 187 kWh/m2 year |
Floor plans
Address and map
Via Ugo La Malfa
6, Palermo
Ad without map,
try asking the advertiser for the position
try asking the advertiser for the position
Advertiser
Call
CONTACT


