Villa via degli olita, Lecce
€ 270.000
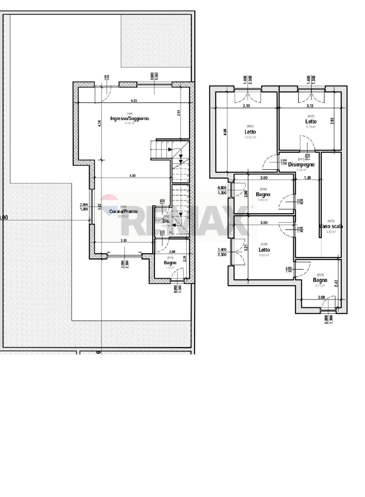
Immagina di varcare la soglia di una casa che non è solo un edificio, ma un manifesto di stile e sostenibilità. Nel cuore pulsante di una delle zone più dinamiche e promettenti di Lecce, in Via degli Olita, sta prendendo forma un esclusivo complesso di sole undici ville indipendenti, progettate per chi cerca unestetica contemporanea senza rinunciare al massimo comfort tecnologico. Lesperienza abitativa inizia da un ampio giardino privato, un vero e proprio polmone verde dove organizzare cene sotto le stelle, far giocare i bambini o semplicemente godersi il sole in totale privacy. All'interno, la villa si svela con un piano terra concepito come un grande palcoscenico per la tua vita sociale: un immenso open space fonde armoniosamente ingresso, soggiorno e zona cucina in un unico ambiente inondato di luce naturale, completato da un disimpegno funzionale e da un primo bagno di servizio rifinito con materiali di pregio completo di lavanderia. Salendo al primo piano, la zona notte si trasforma in un rifugio di quiete e design. Qui, tre camere da letto versatili servite da un secondo bagno padronale progettato per il massimo relax. Ogni ambiente è arricchito da pertinenze esterne come balconi e verande che estendono lo spazio vitale verso l'esterno, offrendo affacci aperti e ventilazione naturale. Vivere qui significa abbracciare il futuro dell'efficienza energetica. Grazie alla prestigiosa Classe A4, la tua casa lavora per te: i pannelli fotovoltaici da 3,5 kw catturano l'energia solare, mentre l'impianto di riscaldamento a pavimento e la pompa di calore garantiscono un clima perfetto in ogni stagione con consumi ridotti ai minimi termini. Il tutto è completato da un comodo posto auto interno al giardino, per garantirti la massima praticità al tuo rientro a casa. Scegliere Via degli Olita significa posizionarsi in un nodo strategico di Lecce, a pochi passi dai servizi principali e ben collegato al cuore della città, pur mantenendo quell'atmosfera di esclusività e silenzio che solo un complesso di nuova costruzione può offrire. Questa non è solo una casa, è il primo capitolo della tua nuova vita straordinaria.
Main data
| Reference | 21260245-94 |
| Ad date | 18/03/2026 |
| Contract | Sale |
| Typology | Villa |
| Surface | 150 m2 |
| Locals | 4 (3 bedrooms, 1 other), 2 bathrooms |
| Plan | On several levels |
| Garage | Absent |
| Number of parking spaces | 1 |
Costs
| Price | 270.000 € |
| Price per m2 | 1.800 €/m2 |
Energy efficiency
| Heating | Autonomous |
| Heating System Type | on the floor |
| Heating Power Type | Photovoltaic |
| Energy rating | A4 |
Floor plans
Address and map
via degli olita, Lecce
Ad without map,
try asking the advertiser for the position
try asking the advertiser for the position
Mortgage calculation
Selling price:
Advance
20,00
Mortgage
80,00
Rate: -+
Payment: 772 per month
The results are an indicative estimate based on the data entered and do not constitute a financial offer.
Advertiser
Call
CONTACT


