Apartment via San Vito 223, Ercolano
€ 725.000
Ercolano - Via San Vito. Prestigiosa dimora panoramica con vasto giardino, notevoli superfici di terreno annesso, e incantevoli terrazzamenti (Cat. A/7)
In posizione dominante e riservata, proponiamo in vendita esclusiva dimora panoramica di circa 400 mq, arricchita da locale cantinato e box auto di 50 mq, immersa nel verde di un ampio giardino privato e terreni circostanti con suggestivi terrazzamenti.
La proprietà gode di quattro esposizioni, che garantiscono straordinaria luminosità durante tutta la giornata e ampie vedute panoramiche. Gli spazi interni sono generosi e ben distribuiti: lampio salone di rappresentanza con camino crea un ambiente elegante e accogliente, mentre le numerose armadiature su misura offrono funzionalità e comfort.
Allesterno, la villa dispone di unampia area parcheggio, ideale per accogliere più autovetture e ospiti. Inoltre c'è un ampio vano cantinato ed un box auto di 50 mq.
Grazie alle generose dimensioni e alla notevole versatilità degli spazi, la proprietà offre molteplici possibilità di valorizzazione. Si presta perfettamente sia alla realizzazione di una prestigiosa residenza privata, sia alla trasformazione in una struttura ricettiva di charme, come boutique hotel o esclusiva struttura hospitality.
Limmobile può inoltre essere destinato a residenza assistita (RSA) o ad altre soluzioni ricettive e residenziali di alto livello.
Da riattare, rappresenta uninteressante opportunità di investimento grazie allelevato potenziale di sviluppo e valorizzazione.
In posizione dominante e riservata, proponiamo in vendita esclusiva dimora panoramica di circa 400 mq, arricchita da locale cantinato e box auto di 50 mq, immersa nel verde di un ampio giardino privato e terreni circostanti con suggestivi terrazzamenti.
La proprietà gode di quattro esposizioni, che garantiscono straordinaria luminosità durante tutta la giornata e ampie vedute panoramiche. Gli spazi interni sono generosi e ben distribuiti: lampio salone di rappresentanza con camino crea un ambiente elegante e accogliente, mentre le numerose armadiature su misura offrono funzionalità e comfort.
Allesterno, la villa dispone di unampia area parcheggio, ideale per accogliere più autovetture e ospiti. Inoltre c'è un ampio vano cantinato ed un box auto di 50 mq.
Grazie alle generose dimensioni e alla notevole versatilità degli spazi, la proprietà offre molteplici possibilità di valorizzazione. Si presta perfettamente sia alla realizzazione di una prestigiosa residenza privata, sia alla trasformazione in una struttura ricettiva di charme, come boutique hotel o esclusiva struttura hospitality.
Limmobile può inoltre essere destinato a residenza assistita (RSA) o ad altre soluzioni ricettive e residenziali di alto livello.
Da riattare, rappresenta uninteressante opportunità di investimento grazie allelevato potenziale di sviluppo e valorizzazione.
Main data
| Reference | CBI091-931-43814 |
| Ad date | 18/03/2026 |
| Contract | Sale |
| Typology | Apartment |
| Surface | 420 m2 |
| Locals | more than 5 (15 other), kitchen habitable |
| Construction type | Signorile |
| Occupied | Free |
| Garage | Double |
| Number of parking spaces | 10 |
| Furniture | Absent |
Costs
| Price | 725.000 € |
| Price per m2 | 1.726 €/m2 |
Energy efficiency
| Status | To be restored |
| Heating | Autonomous |
| Heating System Type | at the stove |
| Energy rating | G |
| Energy Performance Index (IPE) | - |
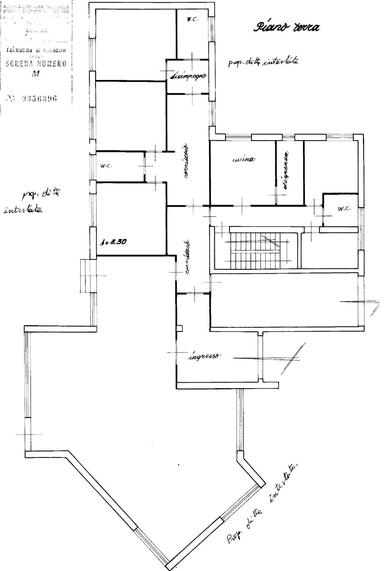
Floor plans
Video
Address and map
via San Vito
223, Ercolano
Ad without map,
try asking the advertiser for the position
try asking the advertiser for the position
Mortgage calculation
Selling price:
Advance
20,00
Mortgage
80,00
Rate: -+
Payment: 2.073 per month
The results are an indicative estimate based on the data entered and do not constitute a financial offer.
Advertiser

Coldwell Banker Intermedia Real Estate
Via A. Moro 24, San Giorgio a Cremano
Show Phone
Show Mobile
Call
CONTACT

