Rustic Loc Cadane 3, Spigno Monferrato
€ 160.000
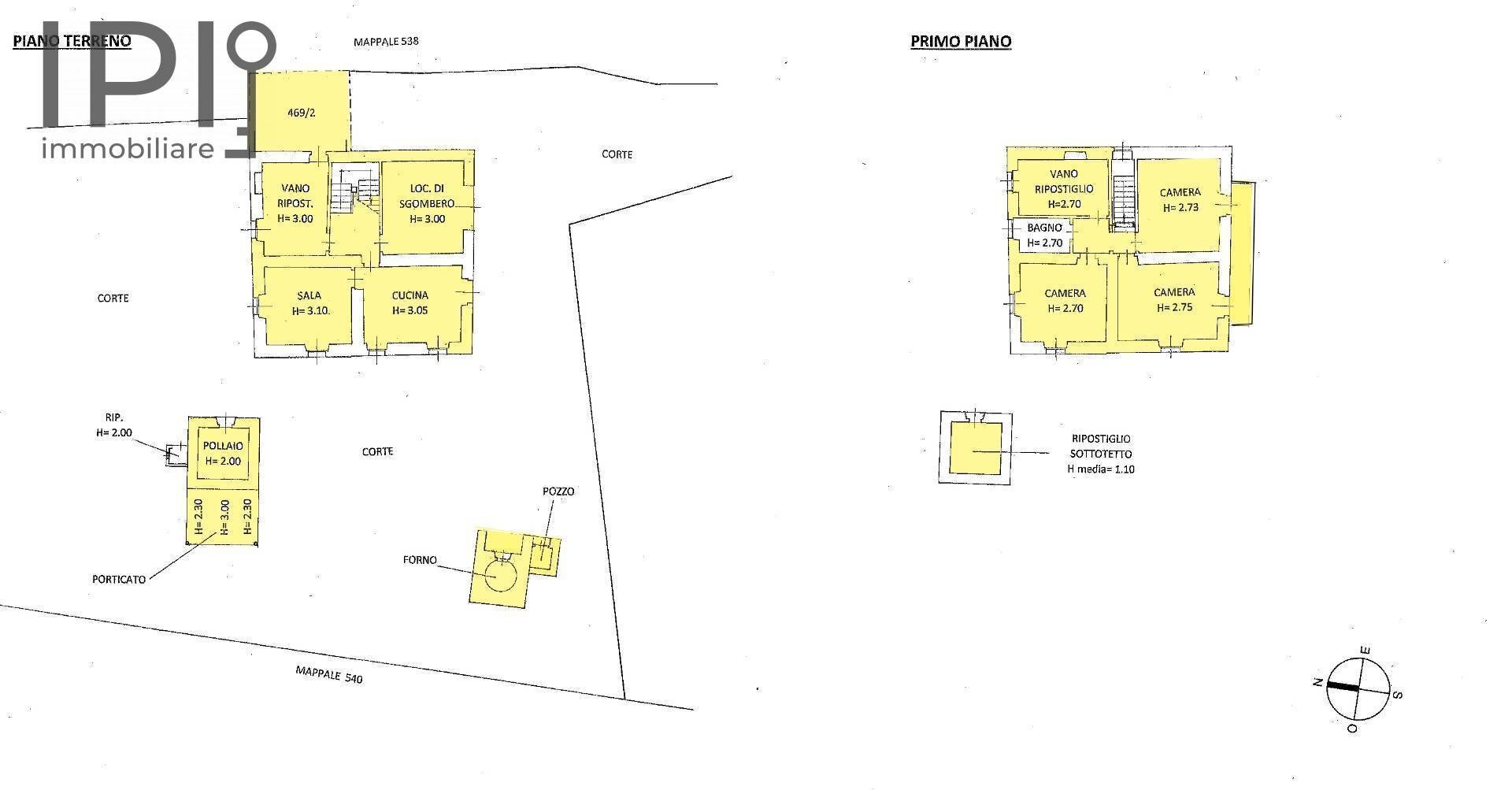
Alto Monferrato,in Comune di Spigno Monferrato ma a due passi dal comune di Merana, a 25 minuti dalla città termale di Acqui terme ed a 35 minuti dalle spiagge del mar ligure, circondati dalla natura ma a poca distanza dalle vie di collegamento principali, proponiamo questa bella proprietà indipendente, con accesso da cancello automatico, composta da due fabbricati principali, la casa ed il locale ex agricolo e da 33.000 mq circa di terreno - Casa abitativa: accesso su cucina abitabile e da qui a disimpegno che ci rimanda ad una bella sala spaziosa, e a 2 vani deposito. Ancora, al piano terreno, raggiungibile dall'interno, garage. Al piano superiore troviamo invece 3 camere da letto, un ulteriore vano a deposito ed il bagno. Tutte le finestre sono in alluminio doppio vetro, i soffitti sono alti, pavimenti in graniglia, muri perimetrali in pietra, impianti in generale anni '70. Il riscaldamento con caldaia a pellet e termosifoni acqua comunale e pozzo privato. - Locale ex agricolo: si compone al piano terreno di 4 vani a deposito di buone dimensioni ed al piano primo di 2 grandi vani un tempo fienile. Bella terrazza coperta da tettoia esterna con pavimentazione in cemento per parcheggiare auto o per godere degli spazi esterni in un luogo coperto. - Completano la proprietà un pozzo con adiacente forno a legna e un piccolo locale a deposito/legnaia. Tetti e strutture in ottime condizioni finiture interne risalenti agli anni 70. I terreni nel loro complessi di 33.000 mq sono in parte accorpati intorno alla casa ed in parte staccati, sul retro della proprietà per la maggiior parte pianeggianti. Bella proprietà con grande potenziale di sviluppo per qualsiasi tipio di progetto, riservata ma vicinissima al centro del paese, intererssante anche comne potenziale B&B o agriturismo. Savona/mare 40 km Acqui Terme 35 km Piste da sci 85 km Milano 160 km Torino 120 km Genova 90 km
Main data
| Reference | 6073 |
| Ad date | 18/03/2026 |
| Contract | Sale |
| Typology | Rustic |
| Surface | 650 m2 |
| Locals | more than 5 (3 bedrooms, 7 other), 1 bathroom, kitchen habitable |
| Plan | On several levels, 2 totals |
| Construction type | Popular |
| Occupied | Free |
| Garage | Single |
Costs
| Price | 160.000 € |
| Price per m2 | 246 €/m2 |
Energy efficiency
| Heating | Autonomous |
| Energy rating | G |
| Energy Performance Index (IPE) | 300 kWh/m2 year |
Floor plans
Address and map
Loc Cadane
3, Spigno Monferrato
Ad without map,
try asking the advertiser for the position
try asking the advertiser for the position
Mortgage calculation
Selling price:
Advance
20,00
Mortgage
80,00
Rate: -+
Payment: 458 per month
The results are an indicative estimate based on the data entered and do not constitute a financial offer.
Advertiser

Immobiliare IPI
Via Fratelli Francia, 26, Cairo Montenotte
Show Phone
Show Mobile
Call
CONTACT

