Three-room apartment Via Monsuello 154, Lumezzane
€ 79.000
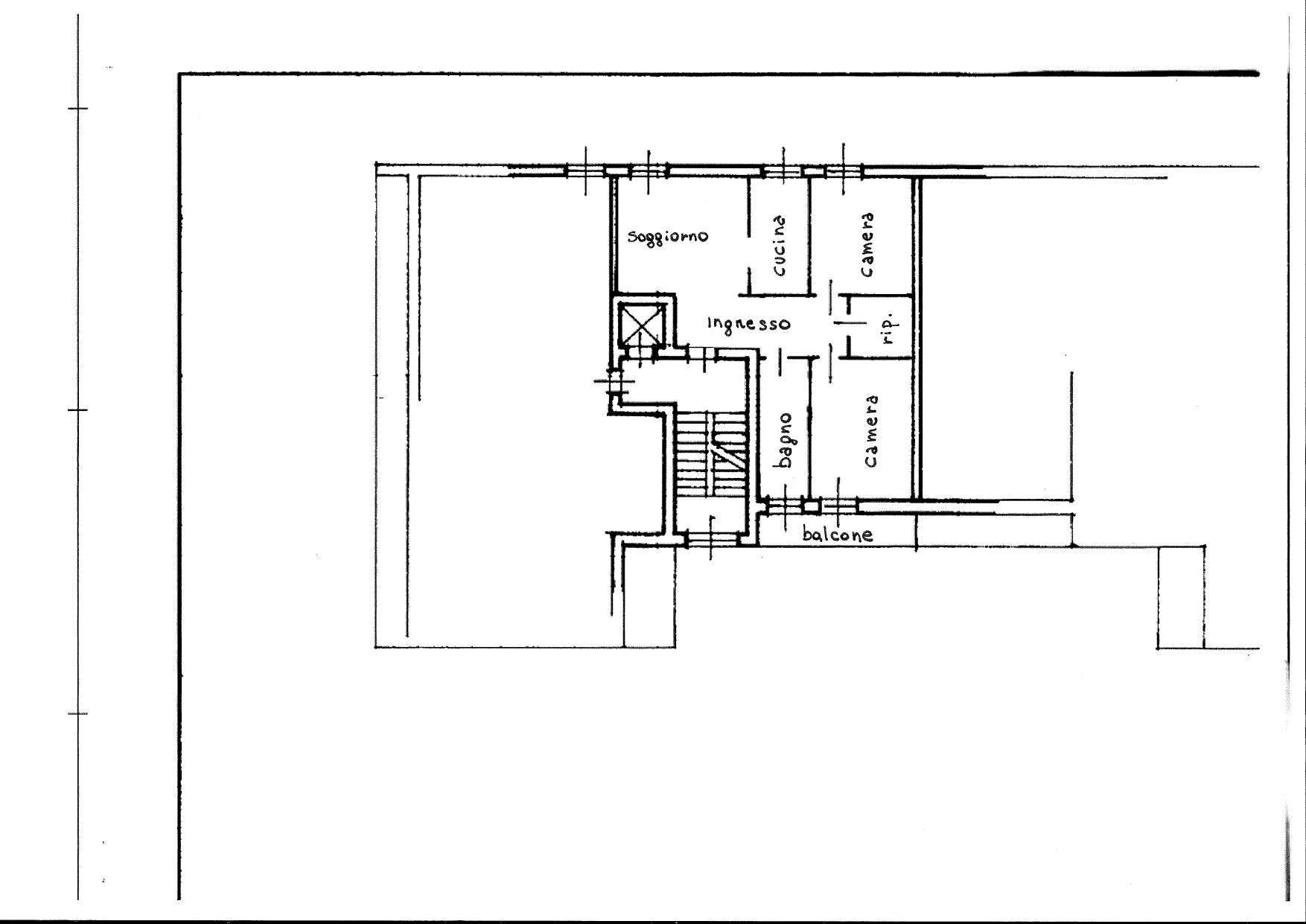
VENDESI TRILOCALE PREZZO AFFARE - LUMEZZANE Proponiamo in vendita un comodo trilocale situato nella frazione di San Sebastiano, inserito in una palazzina ordinata e servita da ascensore, in posizione strategica e comodamente collegata ai principali servizi della zona. Lappartamento è già stato ristrutturato e mantenuto in condizioni ottime, si distingue per una distribuzione degli spazi funzionale e ben equilibrata. L ampio ingresso, sfruttabile, introduce l'abitazione conducendo alla zona giorno, dove troviamo un luminoso soggiorno semi-separato dalla cucina abitabile, con possibilità di creare un ambiente openspace. La zona notte comprende una spaziosa camera matrimoniale e una camera doppia/tripla, entrambe caratterizzate da ottima vivibilità e versatilità darredo. Completa il reparto notte un pratico ripostiglio, elemento sempre più raro e prezioso nella gestione quotidiana degli spazi domestici ed il bagno, finestrato e dotato di doccia, che offre un ulteriore valore aggiunto, ovvero laccesso diretto al balcone attualmente adibito a zona lavanderia, soluzione discreta e funzionale che ottimizza lorganizzazione interna dellabitazione. Limmobile viene venduto completo di arredo, una scelta che rappresenta un concreto valore aggiunto: nessun intervento immediato necessario, nessuna ulteriore spesa da sostenere, ma una casa pronta da vivere sin dal primo giorno. Serramenti in PVC/Doppio vetro, impianti e pavimenti rifatti. Nelle spese condominiali è compresa lutenza del riscaldamento, aspetto che garantisce una gestione più prevedibile e ordinata dei costi annuali. La proprietà è completata da una cantina al piano interrato. Una proposta che coniuga qualità abitativa, funzionalità e convenienza economica, ideale per famiglie, giovani coppie o per chi desidera un investimento sicuro in un contesto residenziale ben servito, a un prezzo particolarmente interessante. Si informa la gentile clientela che l'indirizzo è indicativo, l'ubicazione per motivi di privacy serve solo per identificare la zona del paese. Per maggiori info: IMMOBILIARE VIVA CASA Tel. 0306377606
Main data
| Reference | VTL568 |
| Ad date | 18/03/2026 |
| Contract | Sale |
| Typology | Apartment |
| Surface | 90 m2 |
| Locals | 3 (2 bedrooms, 1 other), 1 bathroom, kitchen habitable |
| Plan | 3 from 5 totals |
| Construction type | Signorile |
| Occupied | Free |
| Garage | Absent |
| Furniture | Complete |
Costs
| Price | 79.000 € |
| Price per m2 | 878 €/m2 |
| Heating Expenses | €90,00/year |
Energy efficiency
| Status | Excellent |
| Heating | Centralized |
| Energy rating | F |
| Energy Performance Index (IPE) | 193 kWh/m2 year |
Floor plans
Address and map
Via Monsuello
154, Lumezzane
Ad without map,
try asking the advertiser for the position
try asking the advertiser for the position
Mortgage calculation
Selling price:
Advance
20,00
Mortgage
80,00
Rate: -+
Payment: 226 per month
The results are an indicative estimate based on the data entered and do not constitute a financial offer.
Advertiser
Call
CONTACT


