Villa Via Lorenzo il Magnifico, Taranto
€ 370.000Indipendente - Villa a Talsano, Taranto
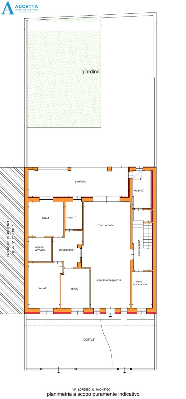
OPPORTUNITÀ UNICA! Esclusiva villa di ampia metratura su un unico livello, completamente ristrutturata e pari al nuovo, situata in zona residenziale tranquilla e riservata di Talsano. Questa splendida proprietà rappresenta la perfetta sintesi tra comfort abitativo, ampi spazi ed elevata efficienza energetica. La villa è stata oggetto di una ristrutturazione integrale realizzata da maestri nel settore, utilizzando tecniche innovative e materiali di prima qualità, con dotazione di impianti per il risparmio energetico. Gli ambienti interni si distinguono per gli spazi ampi, luminosi e ben distribuiti. Il cuore della casa è una spaziosissima zona living open-space, caratterizzata da una moderna zona cottura a vista e da una magnifica vetrata che conduce direttamente al portico e al giardino retrostante, creando una continuità tra interno ed esterno. La zona notte, ben separata, offre il massimo comfort e privacy ed è composta da: tre comode camere da letto, tra cui la camera matrimoniale con cabina armadio; una quarta stanza ideale come studio, stanza ospiti o area hobby e due ampi bagni. Completa la proprietà una scala interna con accesso diretto al lastrico solare, che offre ulteriori possibilità di utilizzo. All’esterno la villa dispone di un pratico portico con vano tecnico, un cortile antistante e un ampio giardino retrostante, perfetto per momenti di relax all’aperto, per la famiglia o per accogliere ospiti. Dal punto di vista tecnologico ed energetico, l’immobile è dotato di: impianto fotovoltaico, cappotto termico, infissi in PVC con doppio vetro, persiane in alluminio, impianto di riscaldamento autonomo con caldaia elettrica, videocitofono, porta blindata, cancello automatico e predisposizione per climatizzatori. Le finiture interne sono di livello, con pavimentazioni e rivestimenti in gres effetto legno di nuova installazione, che conferiscono eleganza, durabilità e facilità di manutenzione. Una soluzione abitativa moderna, efficiente e pronta da vivere, ideale per chi desidera una villa indipendente con ampi spazi, tecnologie di ultima generazione e il massimo comfort in un contesto residenziale riservato.
Main data
| Reference | 370 |
| Ad date | 14/03/2026 |
| Contract | Sale |
| Typology | Villa |
| Surface | 224 m2 |
| Locals | 5 (4 bedrooms, 1 other), 2 bathrooms |
| Plan | 1 totals |
| Number of parking spaces | 1 |
Costs
| Price | 370.000 € |
| Price per m2 | 1.652 €/m2 |
Energy efficiency
| Energy rating | In the calculation phase |
Floor plans
Address and map
Via Lorenzo il Magnifico, Taranto
Mortgage calculation
Selling price:
Advance
20,00
Mortgage
80,00
Rate: -+
Payment: 1.058 per month
The results are an indicative estimate based on the data entered and do not constitute a financial offer.
Advertiser
Call
CONTACT

