Two-room apartment Via Marino Ortolani, Malalbergo
€ 139.000Bilocale in vendita
Altedo: Bilocale situato al primo piano di un condominio dotato di ascensore. L'appartamento offre un ambiente luminoso e spazioso, ideale per chi cerca una soluzione abitativa comoda e funzionale. La posizione centrale garantisce un facile accesso a tutti i servizi essenziali.
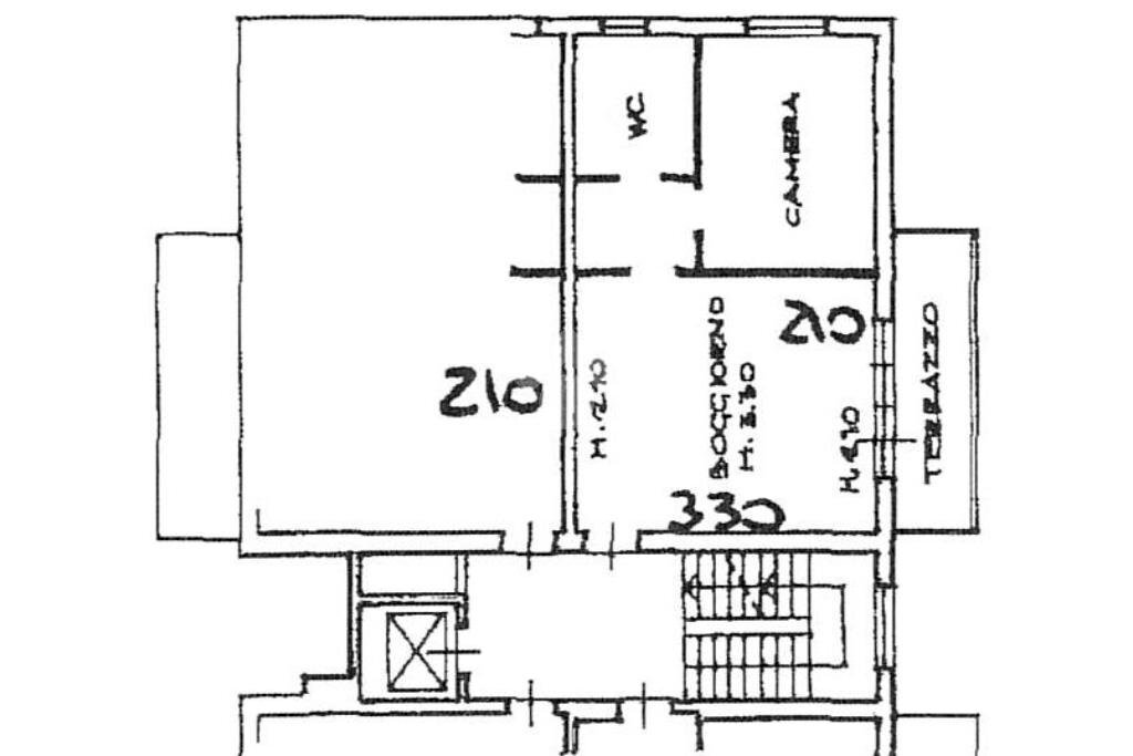
L'immobile è composto da soggiorno con angolo cottura, disimpegno, bagno finestrato, un'ampia camera da letto matrimoniale e un balcone che aggiunge un tocco di vivibilità all'insieme. Il riscaldamento autonomo assicura un controllo ottimale dei consumi energetici. Completano la proprietà un box auto e una cantina, offrendo ulteriore spazio per le varie esigenze. Le inferiate presenti garantiscono un livello aggiuntivo di sicurezza. Questa soluzione rappresenta un'opportunità interessante per chi desidera vivere in una zona ben servita, senza rinunciare alla tranquillità e al comfort.
Per ricevere maggiori informazioni o fissare una visita contattare il numero 051.6601042 o 344.2413132
L'immobile è composto da soggiorno con angolo cottura, disimpegno, bagno finestrato, un'ampia camera da letto matrimoniale e un balcone che aggiunge un tocco di vivibilità all'insieme. Il riscaldamento autonomo assicura un controllo ottimale dei consumi energetici. Completano la proprietà un box auto e una cantina, offrendo ulteriore spazio per le varie esigenze. Le inferiate presenti garantiscono un livello aggiuntivo di sicurezza. Questa soluzione rappresenta un'opportunità interessante per chi desidera vivere in una zona ben servita, senza rinunciare alla tranquillità e al comfort.
Per ricevere maggiori informazioni o fissare una visita contattare il numero 051.6601042 o 344.2413132
Main data
| Reference | 61189400 |
| Ad date | 13/03/2026 |
| Contract | Sale |
| Typology | Apartment |
| Surface | 64 m2 |
| Locals | 2 (2 other), 1 bathroom |
| Plan | 1 from 4 totals |
Costs
| Price | 139.000 € |
| Price per m2 | 2.172 €/m2 |
| Condominium fees | €54,00/month |
Energy efficiency
| Year built | 1994 |
| Heating | Autonomous |
| Heating Power Type | Methane |
| Energy rating | G |
| Energy Performance Index (IPE) | - |
Floor plans
Video
Address and map
Via Marino Ortolani, Malalbergo
Mortgage calculation
Selling price:
Advance
20,00
Mortgage
80,00
Rate: -+
Payment: 398 per month
The results are an indicative estimate based on the data entered and do not constitute a financial offer.
Advertiser
Call
CONTACT

