Commercial Premises Via Enrico Forlanini, Parma
€ 345.000Capannone / Fondo - Industriale/Artigianale a Parma
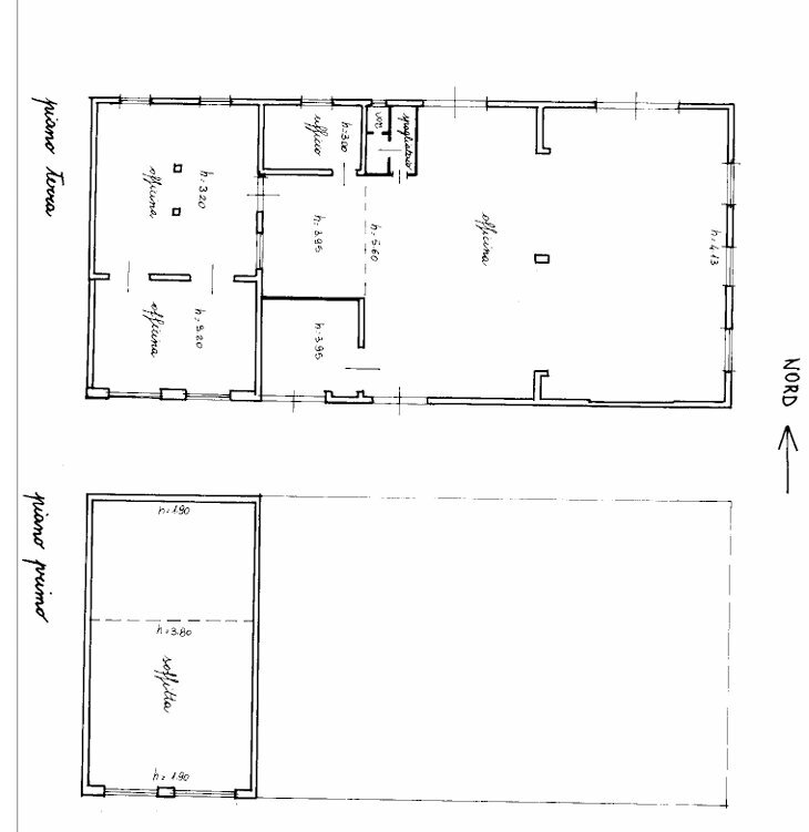
Zona Pedrignano capannone ad uso commerciale/officina Capannone (B) ad uso commerciale/officina di circe 460 mq (ampliabile per 150 mq) di cui 380mq di capannone/magazzino e sala verniciatura. Pertinenze e tettoia di 150 mq, accesso indipendente, 20 mq uffici, 7 mq di spogliatoio e 100 mq di soffitta più area esterna. Ideale per piccole attività ad euro 345.000. Possibilità di acquistare una casa bifamiliare (A) adiacente con ingresso e stradello privato composta da due unità abitative di 198 mq al piano terra e 130 mq al piano primo ampliabile di 45 mq . L'unità abitativa si compone al piano terra da un ampio quadrilocale con annesso una zona ufficio/monolocale dotato di ingresso privato. All'interno troviamo un ampio soggiorno, una bella cucina separata abitabile, tre ampie camere da letto, doppi servizi e ripostiglio. Come si vede dalla planimetria adiacente all'appartamento troviamo un locale indipendente da utilizzare si ad uso ufficio con bagno o da monolocale con una metrature di 40 mq! Al piano primo troviamo la seconda unità abitativa sempre con accesso privato e composta da ingresso, soggiorno con cucina a vista, ampio terrazzo, tre camere da letto, bagno. Nelle due abitazioni abbiamo per entrambe una cantina ciascuna. Possibilità di acquisto area verde/giardino di circa 1800 mq ad euro 30.000 mila. Nel prezzo sono comprese 4 autorimesse. Possibilità acquisto solo A oppure solo B oppure entrambi A 450.000 + B 345.000.
Main data
| Reference | 5090/1 |
| Ad date | 11/03/2026 |
| Contract | Sale |
| Typology | Commercial Premises |
| Surface | 460 m2 |
| Locals | 3 (3 other) |
| Plan | 1 totals |
Costs
| Price | 345.000 € |
| Price per m2 | 750 €/m2 |
Energy efficiency
| Energy rating | G |
Address and map
Via Enrico Forlanini, Parma
Mortgage calculation
Selling price:
Advance
20,00
Mortgage
80,00
Rate: -+
Payment: 987 per month
The results are an indicative estimate based on the data entered and do not constitute a financial offer.
Advertiser
Call
CONTACT

