Villa Via Crestellaz 3, Donnas
€ 359.000€ 359.000 VILLA
Descrizione Proponiamo in vendita una villa indipendente su quattro lati, situata a Donnas, ideale per chi cerca ampi spazi.
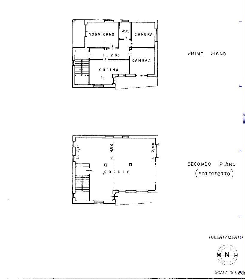
La proprietà è composta da due unità abitative ben distribuite: al piano terra troviamo un appartamento con soggiorno e angolo cottura, camera da letto, bagno finestrato e un secondo accesso diretto sia alla cantina che al garage; al secondo piano si sviluppa un ampio appartamento con ingresso, cucina abitabile con soggiorno e balcone, salone con terrazzo coperto, due camere matrimoniali, bagno finestrato e una soffitta con altezza massima di 4,50 m affacciata su un grande balcone. Questa soffitta offre la possibilità di ampliamento dell’appartamento o di ricavare una terza unità abitativa. Completano la proprietà altri due garage esterni, un locale tecnico e un ampio giardino.
Inoltre, la casa è dotata di pannelli solari termici, garantendo efficienza energetica e risparmio. Un’opportunità imperdibile per vivere in una soluzione spaziosa e versatile nel cuore di Donnas.
Attestato di prestazione energetica in corso.
La proprietà è composta da due unità abitative ben distribuite: al piano terra troviamo un appartamento con soggiorno e angolo cottura, camera da letto, bagno finestrato e un secondo accesso diretto sia alla cantina che al garage; al secondo piano si sviluppa un ampio appartamento con ingresso, cucina abitabile con soggiorno e balcone, salone con terrazzo coperto, due camere matrimoniali, bagno finestrato e una soffitta con altezza massima di 4,50 m affacciata su un grande balcone. Questa soffitta offre la possibilità di ampliamento dell’appartamento o di ricavare una terza unità abitativa. Completano la proprietà altri due garage esterni, un locale tecnico e un ampio giardino.
Inoltre, la casa è dotata di pannelli solari termici, garantendo efficienza energetica e risparmio. Un’opportunità imperdibile per vivere in una soluzione spaziosa e versatile nel cuore di Donnas.
Attestato di prestazione energetica in corso.
Main data
| Reference | 10549RA58303 |
| Ad date | 10/03/2026 |
| Contract | Sale |
| Typology | Villa |
| Surface | 187 m2 |
| Locals | more than 5 (3 bedrooms, 6 other), 2 bathrooms |
Costs
| Price | 359.000 € |
| Price per m2 | 1.920 €/m2 |
Energy efficiency
| Heating | Autonomous |
| Energy rating | Property exempt from energy certification |
Floor plans
Address and map
Via Crestellaz 3, Donnas
Mortgage calculation
Selling price:
Advance
20,00
Mortgage
80,00
Rate: -+
Payment: 1.027 per month
The results are an indicative estimate based on the data entered and do not constitute a financial offer.
Advertiser

Immobiliare Neige di Silvana Briscese
Via Mario Colliard 34, Hone
Show Phone
Show Mobile
Call
CONTACT

