Villa via Chiesuole 6, Noceto
€ 218.000Indipendente - casa a Noceto
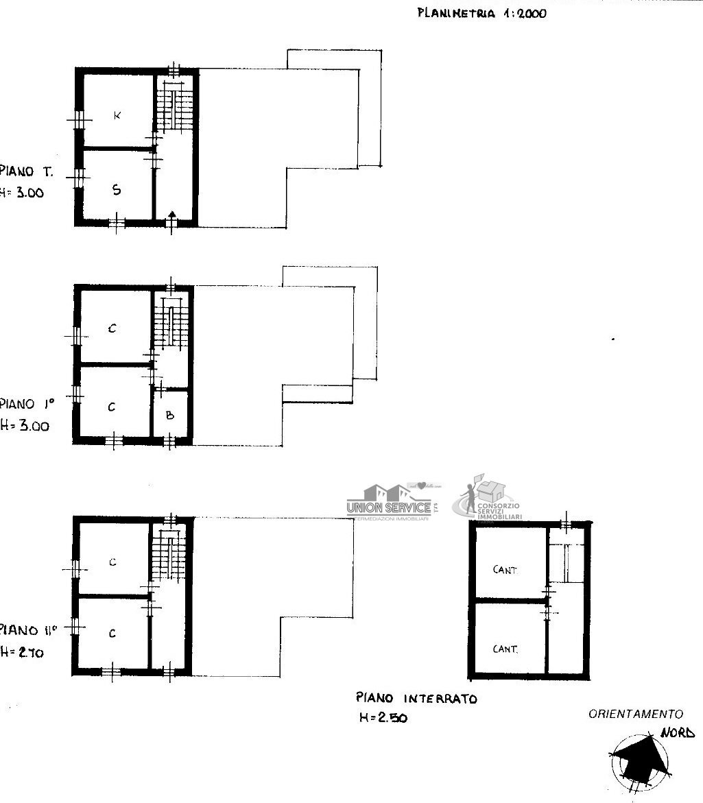
AFFARE A 218.000,00 EURO! NOCETO 3 KM sud, immersa nella campagna ,proponiamo casa bifamiliare indipendente su 2 livelli oltre cantine e solai, composta da 2 appartamenti con ingressi separati, uno di 174 mq e l’altro di 131 mq catastali. Nel corpo principale oltre agli appartamenti, 2 garage, cantine, vecchia stalla e soffitte per ulteriori 2 camere da letto. In totale presenti 2 soggiorni, 2 cucine, 2 bagni, 7 camere da letto. Possibilità di collegare le 2 unità o abbattere il tutto e ricostruire. Fronte all'abitazione troviamo rustichetto ricovero attrezzi o auto con 2 garage e forno. Annessi 5.300 mq di terreno.Immobile in parte ristrutturare ma anche abitabile con poco.Ulteriori info in agenzia. Per qualsiasi ulteriore informazione Union Service Srl 0521/627823 o [email protected] citando il Rif usn785
Main data
| Reference | usn785 |
| Ad date | 13/03/2023 |
| Contract | Sale |
| Typology | Villa |
| Surface | 305 m2 |
| Locals | more than 5 (7 bedrooms, 3 other), 2 bathrooms |
| Plan | 2 totals |
Costs
| Price | 218.000 € |
| Price per m2 | 715 €/m2 |
Energy efficiency
| Energy rating | G |
Floor plans
Address and map
via Chiesuole 6, Noceto
Mortgage calculation
Selling price:
Advance
20,00
Mortgage
80,00
Rate: -+
Payment: 623 per month
The results are an indicative estimate based on the data entered and do not constitute a financial offer.
Advertiser

Union Service srl
Via Bianchi, 16, Noceto
Show Phone
Show Mobile
Call
CONTACT

