Terraced Villa Via D. Turci, Ravenna (neighborhood Castiglione di Ravenna)
€ 145.000Villa a schiera centrale in vendita
CASTIGLIONE DI RAVENNA – Villetta centrale con corte privata e ampi spazi.
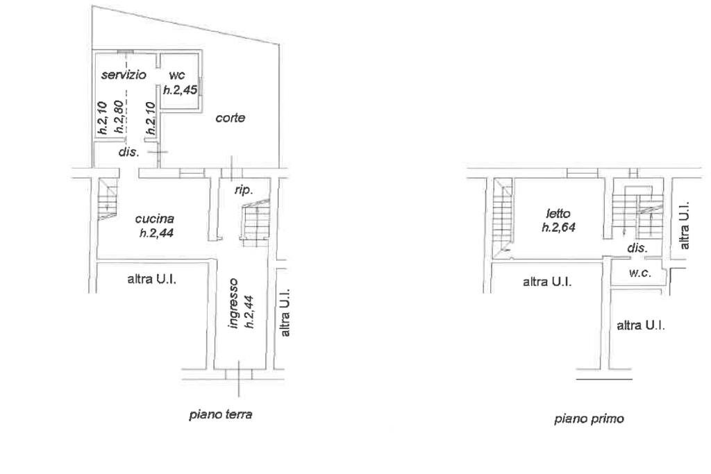
Nel tranquillo contesto residenziale di Castiglione di Ravenna, proponiamo villetta centrale con corte privata, sviluppata su tre livelli, ideale per famiglie che desiderano spazi comodi e ben distribuiti.
Il piano terra è composto da una accogliente zona giorno, cucina separata con accesso alla corte, disimpegno, bagno finestrato e pratico ripostiglio.
Al piano primo troviamo la zona notte composta da camera matrimoniale, disimpegno e secondo bagno.
Il piano secondo presenta due camere matrimonaili e una cameretta, ideali come studio o ambienti hobby.
L’immobile necessita di lavori di ristrutturazione.
Completa la proprietà, in corpo staccato, due ripostigli, perfetti come deposito, ricovero bici o spazio multiuso.
La soluzione rappresenta un’ottima opportunità per chi cerca indipendenza, spazi generosi e la tranquillità di una zona ben servita.
Nel tranquillo contesto residenziale di Castiglione di Ravenna, proponiamo villetta centrale con corte privata, sviluppata su tre livelli, ideale per famiglie che desiderano spazi comodi e ben distribuiti.
Il piano terra è composto da una accogliente zona giorno, cucina separata con accesso alla corte, disimpegno, bagno finestrato e pratico ripostiglio.
Al piano primo troviamo la zona notte composta da camera matrimoniale, disimpegno e secondo bagno.
Il piano secondo presenta due camere matrimonaili e una cameretta, ideali come studio o ambienti hobby.
L’immobile necessita di lavori di ristrutturazione.
Completa la proprietà, in corpo staccato, due ripostigli, perfetti come deposito, ricovero bici o spazio multiuso.
La soluzione rappresenta un’ottima opportunità per chi cerca indipendenza, spazi generosi e la tranquillità di una zona ben servita.
Main data
| Reference | 61186349 |
| Ad date | 05/03/2026 |
| Contract | Sale |
| Typology | Terraced Villa |
| Surface | 150 m2 |
| Locals | 4 (4 other), 2 bathrooms |
| Plan | 2 from 3 totals |
Costs
| Price | 145.000 € |
| Price per m2 | 967 €/m2 |
Energy efficiency
| Year built | 2007 |
| Heating | Autonomous |
| Heating Power Type | Methane |
| Energy rating | G |
| Energy performance index (EP GL, REN ) | 305.8 kWh/m3 year |
| Energy performance index (EP GL, NREN ) | 305.8 kWh/m3 year |
Floor plans
Video
Address and map
Via D. Turci, Ravenna - neighborhood Castiglione di Ravenna
Mortgage calculation
Selling price:
Advance
20,00
Mortgage
80,00
Rate: -+
Payment: 415 per month
The results are an indicative estimate based on the data entered and do not constitute a financial offer.
Advertiser
Call
CONTACT

