Three-room apartment Via Valerio Zurlini, Parma (neighborhood Corcagnano)
€ 215.000Trilocale in vendita
CORCAGNANO:
In elegante palazzina edificata nei primi anni 2000 e completamente riqualificata nel 2023 grazie al Superbonus 110%, proponiamo in vendita un comodo e ampio trilocale in classe energetica A1, ideale per chi desidera comfort, efficienza e tranquillità senza rinunciare alla comodità dei servizi.
L’immobile si trova al primo piano oltre il rialzato, servito da ascensore, all’interno di un contesto residenziale curato e silenzioso, circondato da un ampio giardino condominiale con pozzo comune per l’irrigazione.
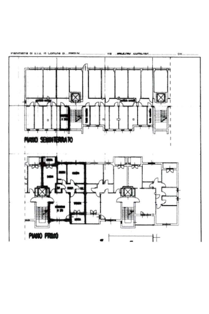
Varcando la porta d’ingresso si viene accolti da un luminoso soggiorno con accesso diretto alla loggia, uno spazio perfetto per rilassarsi all’aperto. La cucina è ampia e abitabile, anch’essa dotata di una loggia privata che garantisce praticità e uno sfogo esterno riservato. Un comodo disimpegno conduce alla zona notte, composta da una camera matrimoniale e da una camera singola di generose dimensioni, la cui loggia è comunicante con quella del soggiorno, creando una piacevole continuità tra gli ambienti e una doppia possibilità di accesso allo spazio esterno.
I bagni sono due: il principale, finestrato, è completo di vasca e doccia, mentre il secondo è cieco, ideale come bagno di servizio o lavanderia. Completa la zona notte un funzionale ripostiglio che aggiunge ulteriore praticità e ordine alla casa.
A completare la proprietà troviamo una cantina, un box auto privato e un posto auto interno assegnato, elementi che assicurano comodità e valore aggiunto.
Nel prezzo, per chi lo desidera, è incluso l’arredamento completo della cucina e dei bagni, oltre a due split con motore inverter, rendendo l’immobile una soluzione pronta da vivere fin da subito.
Un’abitazione ideale per famiglie o per chi cerca spazi generosi, efficienza energetica e qualità della vita in un contesto riservato, verde e ben servito.
In elegante palazzina edificata nei primi anni 2000 e completamente riqualificata nel 2023 grazie al Superbonus 110%, proponiamo in vendita un comodo e ampio trilocale in classe energetica A1, ideale per chi desidera comfort, efficienza e tranquillità senza rinunciare alla comodità dei servizi.
L’immobile si trova al primo piano oltre il rialzato, servito da ascensore, all’interno di un contesto residenziale curato e silenzioso, circondato da un ampio giardino condominiale con pozzo comune per l’irrigazione.
Varcando la porta d’ingresso si viene accolti da un luminoso soggiorno con accesso diretto alla loggia, uno spazio perfetto per rilassarsi all’aperto. La cucina è ampia e abitabile, anch’essa dotata di una loggia privata che garantisce praticità e uno sfogo esterno riservato. Un comodo disimpegno conduce alla zona notte, composta da una camera matrimoniale e da una camera singola di generose dimensioni, la cui loggia è comunicante con quella del soggiorno, creando una piacevole continuità tra gli ambienti e una doppia possibilità di accesso allo spazio esterno.
I bagni sono due: il principale, finestrato, è completo di vasca e doccia, mentre il secondo è cieco, ideale come bagno di servizio o lavanderia. Completa la zona notte un funzionale ripostiglio che aggiunge ulteriore praticità e ordine alla casa.
A completare la proprietà troviamo una cantina, un box auto privato e un posto auto interno assegnato, elementi che assicurano comodità e valore aggiunto.
Nel prezzo, per chi lo desidera, è incluso l’arredamento completo della cucina e dei bagni, oltre a due split con motore inverter, rendendo l’immobile una soluzione pronta da vivere fin da subito.
Un’abitazione ideale per famiglie o per chi cerca spazi generosi, efficienza energetica e qualità della vita in un contesto riservato, verde e ben servito.
Main data
| Reference | 61184253 |
| Ad date | 28/02/2026 |
| Contract | Sale |
| Typology | Apartment |
| Surface | 95 m2 |
| Locals | 3 (3 other), 2 bathrooms |
| Plan | 1 from 2 totals |
Costs
| Price | 215.000 € |
| Price per m2 | 2.263 €/m2 |
| Condominium fees | €67,00/month |
Energy efficiency
| Year built | 2000 |
| Heating | Autonomous |
| Heating Power Type | Methane |
| Energy rating | A1 |
| Energy performance index (EP GL, NREN ) | 58.32 kWh/m3 year |
Floor plans
Address and map
Via Valerio Zurlini, Parma - neighborhood Corcagnano
Mortgage calculation
Selling price:
Advance
20,00
Mortgage
80,00
Rate: -+
Payment: 615 per month
The results are an indicative estimate based on the data entered and do not constitute a financial offer.
Advertiser
Call
CONTACT

