Four-room apartment Via Giuseppe Dezza, Melegnano
€ 494.000Quadrilocale in vendita
MELEGNANO via Dezza nuova costruzione
Nel cuore del paese proponiamo palazzina di nuova costruzione con soli 5 appartamenti di 4 e 5 locali, con possibilità di terrazzi e giardini privati, dove per ogni piano verrà realizzato un solo appartamento. La palazzina avrà ascensore, finiture di pregio, possibilità di personalizzazione, elevati standard costruttivi e di efficientamento energetico come l' installazione di pannelli fotovoltaici individuali con potenza di 2 kW. Gli immobili saranno dotati di impianto termico autonomo ad aria per la climatizzazione degli ambienti in pompa di calore per riscaldamento e raffrescamento e muniti di un impianto di ventilazione meccanica controllata con recupero di calore.
Consegna prevista estate 2027
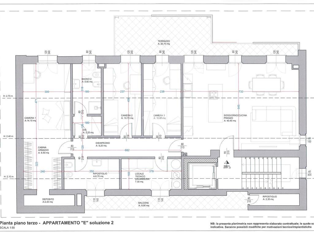
All'ultimo piano proponiamo un appartamento di quattro locali con ampi spazi ben distribuiti.
La zona giorno è composta da un soggiorno con cucina a vista con affaccio sul terrazzo, un corridoio ci conduce nella zona notte dove troviamo 3 camere da letto, di cui una matrimoniale con cabina armadio, una lavanderia, una stanza hobby e un bagno, moderno e con finestra.
Completa la proprietà una cantina.
C'è la possibilità di acquistare un posto auto e un box.
Nel cuore del paese proponiamo palazzina di nuova costruzione con soli 5 appartamenti di 4 e 5 locali, con possibilità di terrazzi e giardini privati, dove per ogni piano verrà realizzato un solo appartamento. La palazzina avrà ascensore, finiture di pregio, possibilità di personalizzazione, elevati standard costruttivi e di efficientamento energetico come l' installazione di pannelli fotovoltaici individuali con potenza di 2 kW. Gli immobili saranno dotati di impianto termico autonomo ad aria per la climatizzazione degli ambienti in pompa di calore per riscaldamento e raffrescamento e muniti di un impianto di ventilazione meccanica controllata con recupero di calore.
Consegna prevista estate 2027
All'ultimo piano proponiamo un appartamento di quattro locali con ampi spazi ben distribuiti.
La zona giorno è composta da un soggiorno con cucina a vista con affaccio sul terrazzo, un corridoio ci conduce nella zona notte dove troviamo 3 camere da letto, di cui una matrimoniale con cabina armadio, una lavanderia, una stanza hobby e un bagno, moderno e con finestra.
Completa la proprietà una cantina.
C'è la possibilità di acquistare un posto auto e un box.
Main data
| Reference | 61182540 |
| Ad date | 27/02/2026 |
| Contract | Sale |
| Typology | Apartment |
| Surface | 156 m2 |
| Locals | 4 (4 other), 1 bathroom |
| Plan | 3 from 3 totals |
Costs
| Price | 494.000 € |
| Price per m2 | 3.167 €/m2 |
Energy efficiency
| Year built | 2026 |
| Heating | Autonomous |
| Energy rating | Property exempt from energy certification |
Floor plans
Address and map
Via Giuseppe Dezza, Melegnano
Mortgage calculation
Selling price:
Advance
20,00
Mortgage
80,00
Rate: -+
Payment: 1.413 per month
The results are an indicative estimate based on the data entered and do not constitute a financial offer.
Advertiser
Call
CONTACT

