Office via del Teatro Valle, 19, Roma (neighborhood Centro Storico)
€ 25.000 per monthUfficio di rappresentanza Pantheon
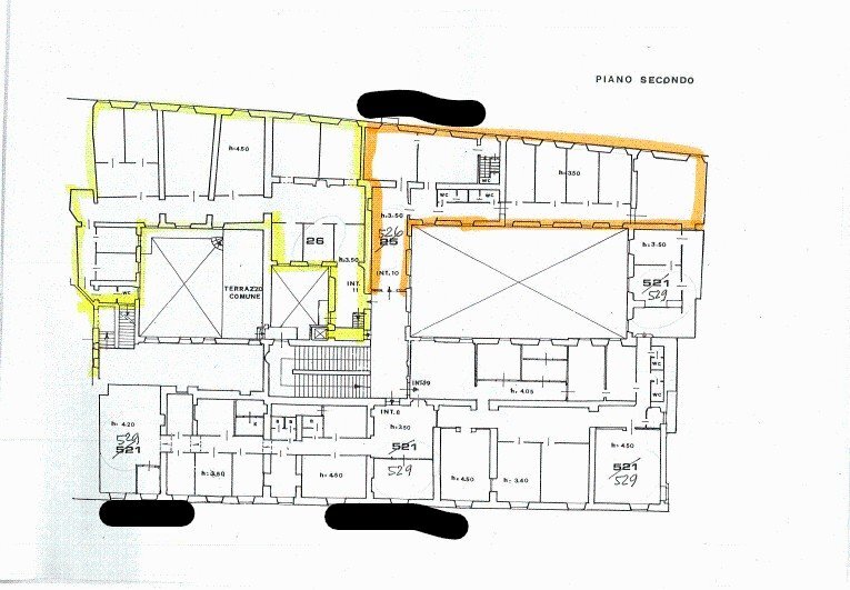
Palazzo Storico con servizio di portineria ed ascensore, ufficio di ampia metratura, 700 mq circa, con soffitti alti e decorati con pavimenti molto belli. L’ingresso introduce a una spaziosa area reception da cui si sviluppa un percorso interno composto da numerosi ambienti di diverse dimensioni, facilmente modulabili in base alle esigenze. L’immobile dispone di una grande sala d’attesa impreziosita da un caminetto in marmo, oltre a diverse stanze ampie e luminose. Sono presenti ulteriori locali di generose dimensioni, 2 sale riunioni particolarmente spaziose, ambienti ad uso archivio – uno dei quali con angolo cucina – e numerosi uffici di metratura variabile. La distribuzione comprende inoltre disimpegni funzionali che collegano ulteriori stanze interne, garantendo riservatezza e ottima organizzazione degli spazi. I servizi sono ben distribuiti e comprendono più bagni, alcuni dotati di antibagno, con distinzione uomo/donna. Un secondo ingresso collegato alla scala principale. La conformazione e la metratura rendono l’immobile particolarmente adatto come studio professionale di rappresentanza in un contesto storico di grande fascino. Richiesta € 25.000,00
Main data
| Reference | 2610 |
| Ad date | 25/02/2026 |
| Contract | Rent |
| Typology | Office |
| Surface | 700 m2 |
| Plan | 1 totals |
| Construction type | Signorile |
| Real estate use | Commercial |
Costs
| Price | 25.000 € per month |
| Condominium fees | €1,00/month |
Energy efficiency
| Heating | Autonomous |
| Energy rating | G |
| Energy Performance Index (IPE) | 65 kWh/m2 year |
Floor plans
Address and map
via del Teatro Valle, 19, Roma - neighborhood Centro Storico
Advertiser
Call
CONTACT


