Office Via degli Alpini, Susegana
€ 530.000
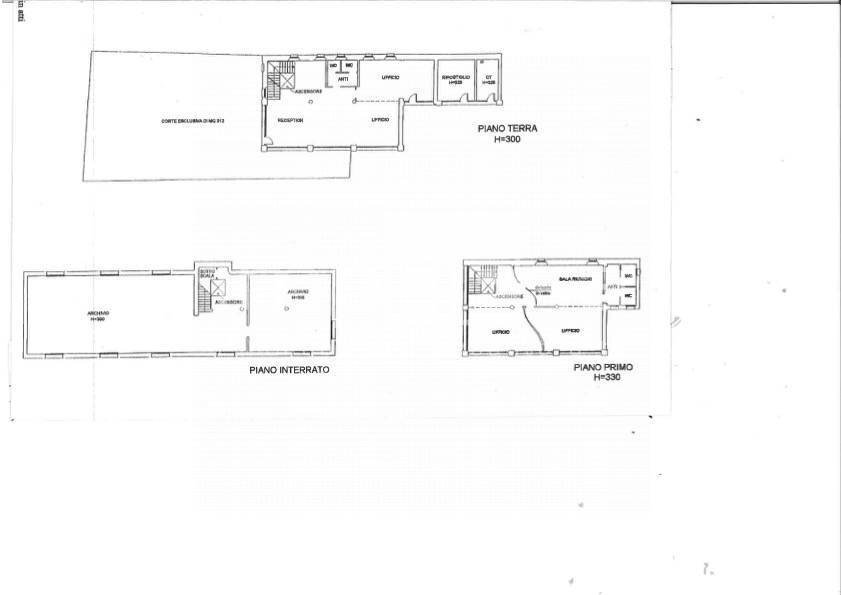
Studio/Uffico a Colfosco di Susegana in vendita. Proponiamo questo fantastico immobile ad utilizzo direzionale e/o ufficio a Colfosco di Susegana in vendita Trattasi della ex sede di "GHIAIA DI COLFOSCO". La proprietà è costituita da un'area sulla quale è eretto un fabbricato del 2007 destinato a direzionale uffici e studio. L'edificio si sviluppa su 2 piani fuori terra e un piano interrato per un totale di 610mq. Al piano terra è presente un ingresso che da sull'atrio principale dove è presente la reception, proseguendo si arriva alla zona destinata a uffici e numerose postazioni lavoro, infine su questo piano è presente un primo bagno con doppi servizi. Salendo al piano primo troviamo due grandi uffici dirigenziali separati tra loro e una sala riunioni di generose dimensioni, conclude il piano un secondo bagno anche questo dotato di doppi servizi. l'intero spazio è travato a vista. Al piano interrato troviamo una grande sala conferenze e un archivio. Completa l'offerta una spazio esterno di proprietà destinato a parcheggi dedicati di cui 8 coperti da una tettoia. Quest'immobile è in classe C, e gode di ottime metrature, e numerosi comfort quali: Immobile in ottimo contesto e semi indipendente. Metrature generose. Parcheggi coperti e scoperti di proprietà. Recente costruzione. Efficenza energetica. Sale conferenze e riunioni dedicate. Ascensore che collega tutti i piani. Per avere maggiori informazioni su questo immobile in vendita a Colfosco di Susegana potete contattarci presso l'agenzia immobiliare impREsa di Conegliano in Via Colombo 51 telefonando al n. 043823921, citando il Rif. I/NG098 oppure visitate il nostro sito www.impresaimmobiliare.com
Main data
| Reference | I/NG098 |
| Ad date | 27/02/2026 |
| Contract | Sale |
| Typology | Office |
| Surface | 610 m2 |
| Locals | more than 5 (10 other), 2 bathrooms, kitchen not present |
| Plan | Earth, 2 totals |
| Occupied | Free |
| Garage | Absent |
| Number of parking spaces | 7 |
| Furniture | Partial |
Costs
| Price | 530.000 € |
| Price per m2 | 869 €/m2 |
Energy efficiency
| Status | Excellent |
| Heating | Autonomous |
| Energy rating | C |
| Energy Performance Index (IPE) | - |
Floor plans
Virtual tour
Address and map
Via degli Alpini, Susegana
Ad without map,
try asking the advertiser for the position
try asking the advertiser for the position
Mortgage calculation
Selling price:
Advance
20,00
Mortgage
80,00
Rate: -+
Payment: 1.516 per month
The results are an indicative estimate based on the data entered and do not constitute a financial offer.
Advertiser
Call
CONTACT


