Two-room apartment Via Veneto, Campegine
€ 110.000Bilocale in vendita
CAMPEGINE- BILOCALE IN CONTESTO DEL 2007 SERVITO DA ASCENSORE POSTO AL SECONDO ED ULTIMO PIANO E COMPLETO DI GARAGE.
Proponiamo un ampio bilocale, molto grazioso che ben si presta per una coppia che vuole acquistare la sua prima casa ma anche come investimento da mettere a reddito.
La posizione è centrale, il contesto è recente e siamo in un zona strategiaca e comoda a tutti i servizi.
Inoltre abbiamo un area verde a disposizione proprio sotto casa.
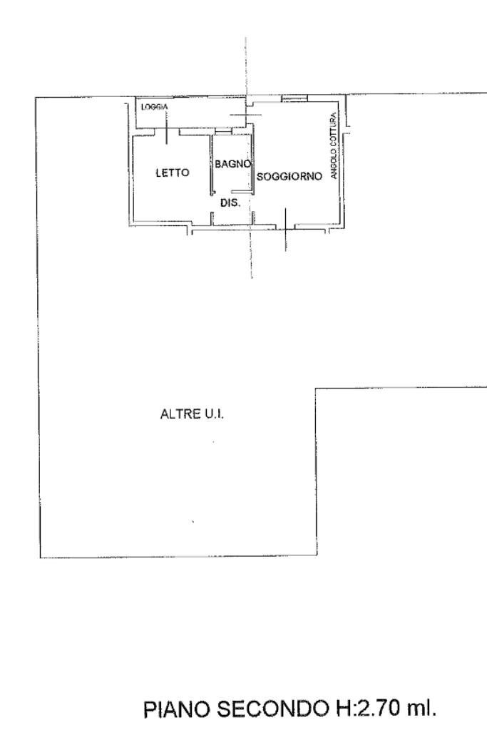
Entrando all'interno dell'appartamento troviamo una bella zona giorno con sfogo nella loggia completamente coperta e sfruttabile per pranzi all'aperto. Attraverso il disimpegno raggiungiamo il bagno completo di doccia e la camera da letto matrimoniale anch'essa collegata alla loggia tramite una comoda porta finestra.
Di pertinenza abbiamo il garage.
L'appartamento è accessoriato di zanzariere e aria condizionata, porta blindata e videocitofono.
PER MAGGIORI INFORMAZIONI O FISSARE UN APPUNTAMENTO CHIAMACI AL 0522.1963669
Proponiamo un ampio bilocale, molto grazioso che ben si presta per una coppia che vuole acquistare la sua prima casa ma anche come investimento da mettere a reddito.
La posizione è centrale, il contesto è recente e siamo in un zona strategiaca e comoda a tutti i servizi.
Inoltre abbiamo un area verde a disposizione proprio sotto casa.
Entrando all'interno dell'appartamento troviamo una bella zona giorno con sfogo nella loggia completamente coperta e sfruttabile per pranzi all'aperto. Attraverso il disimpegno raggiungiamo il bagno completo di doccia e la camera da letto matrimoniale anch'essa collegata alla loggia tramite una comoda porta finestra.
Di pertinenza abbiamo il garage.
L'appartamento è accessoriato di zanzariere e aria condizionata, porta blindata e videocitofono.
PER MAGGIORI INFORMAZIONI O FISSARE UN APPUNTAMENTO CHIAMACI AL 0522.1963669
Main data
| Reference | 61181531 |
| Ad date | 25/02/2026 |
| Contract | Sale |
| Typology | Apartment |
| Surface | 75 m2 |
| Locals | 2 (2 other), 1 bathroom |
| Plan | 2 from 2 totals |
Costs
| Price | 110.000 € |
| Price per m2 | 1.467 €/m2 |
| Condominium fees | €75,00/month |
Energy efficiency
| Year built | 2007 |
| Heating | Autonomous |
| Heating Power Type | Methane |
| Energy rating | E |
| Energy performance index (EP GL, REN ) | 130 kWh/m3 year |
| Energy performance index (EP GL, NREN ) | 130 kWh/m3 year |
Floor plans
Address and map
Via Veneto, Campegine
Mortgage calculation
Selling price:
Advance
20,00
Mortgage
80,00
Rate: -+
Payment: 315 per month
The results are an indicative estimate based on the data entered and do not constitute a financial offer.
Advertiser
Call
CONTACT

