Villa Strada Civezza, Imperia
€ 729.000Villa singola in vendita
Una villa dove il panorama diventa uno stile di vita.
Sulle colline di Poggi, Imperia, dove lo sguardo si perde tra il blu del mare e il verde della macchia mediterranea, proponiamo una villa capace di offrire privacy, spazio e un panorama semplicemente straordinario.
La proprietà si sviluppa su due livelli ed è ideale sia come residenza privata che come soluzione per ospitalità o investimento.
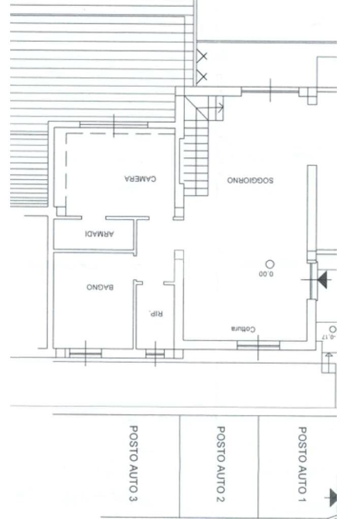
Al piano superiore si accede da un’ampia terrazza panoramica che introduce al primo appartamento: un’accogliente zona giorno con soggiorno e camino, cucina, camera da letto, bagno con vasca e pratico ripostiglio — ambienti luminosi pensati per vivere il panorama in ogni momento della giornata.
Il piano inferiore ospita due appartamenti distinti, progettati per garantire indipendenza, comfort e grande versatilità d’uso.
Il primo, accoglie con una luminosa zona giorno con locale pluriuso, un vano e un bagno: uno spazio ideale per i vostri ospiti.
Il secondo appartamento, di dimensioni più generose e dal respiro familiare, si sviluppa con un ampio soggiorno, cucina separata, camere da letto, 2 ulteriori vani e doppi servizi, offrendo ambienti confortevoli e ben distribuiti, perfetti per soggiorni prolungati.
All’esterno la villa esprime il suo carattere più autentico: un meraviglioso giardino vista mare e un suggestivo pergolato attrezzato con cucina esterna e grande tavolo, lo spazio perfetto per colazioni lente, cene al tramonto e momenti di relax immersi nel silenzio della collina.
Completa la proprietà un box auto e diversi posti auto scoperti.
La casa si presenta in ottime condizioni e rappresenta una soluzione rara per chi desidera vivere la Liguria con spazi generosi, panorama aperto e la possibilità di accogliere famiglia e ospiti in totale indipendenza.
Sulle colline di Poggi, Imperia, dove lo sguardo si perde tra il blu del mare e il verde della macchia mediterranea, proponiamo una villa capace di offrire privacy, spazio e un panorama semplicemente straordinario.
La proprietà si sviluppa su due livelli ed è ideale sia come residenza privata che come soluzione per ospitalità o investimento.
Al piano superiore si accede da un’ampia terrazza panoramica che introduce al primo appartamento: un’accogliente zona giorno con soggiorno e camino, cucina, camera da letto, bagno con vasca e pratico ripostiglio — ambienti luminosi pensati per vivere il panorama in ogni momento della giornata.
Il piano inferiore ospita due appartamenti distinti, progettati per garantire indipendenza, comfort e grande versatilità d’uso.
Il primo, accoglie con una luminosa zona giorno con locale pluriuso, un vano e un bagno: uno spazio ideale per i vostri ospiti.
Il secondo appartamento, di dimensioni più generose e dal respiro familiare, si sviluppa con un ampio soggiorno, cucina separata, camere da letto, 2 ulteriori vani e doppi servizi, offrendo ambienti confortevoli e ben distribuiti, perfetti per soggiorni prolungati.
All’esterno la villa esprime il suo carattere più autentico: un meraviglioso giardino vista mare e un suggestivo pergolato attrezzato con cucina esterna e grande tavolo, lo spazio perfetto per colazioni lente, cene al tramonto e momenti di relax immersi nel silenzio della collina.
Completa la proprietà un box auto e diversi posti auto scoperti.
La casa si presenta in ottime condizioni e rappresenta una soluzione rara per chi desidera vivere la Liguria con spazi generosi, panorama aperto e la possibilità di accogliere famiglia e ospiti in totale indipendenza.
Main data
| Reference | 61182786 |
| Ad date | 25/02/2026 |
| Contract | Sale |
| Typology | Villa |
| Surface | 240 m2 |
| Locals | more than 5 (4 bedrooms, 4 other), 4 bathrooms |
| Plan | 2 from 2 totals |
Costs
| Price | 729.000 € |
| Price per m2 | 3.038 €/m2 |
Energy efficiency
| Year built | 2000 |
| Heating | Autonomous |
| Heating Power Type | Gpl |
| Energy rating | F |
| Energy performance index (EP GL, REN ) | 19.83 kWh/m3 year |
| Energy performance index (EP GL, NREN ) | 146.95 kWh/m3 year |
Floor plans
Video
Address and map
Strada Civezza, Imperia
Mortgage calculation
Selling price:
Advance
20,00
Mortgage
80,00
Rate: -+
Payment: 2.085 per month
The results are an indicative estimate based on the data entered and do not constitute a financial offer.
Advertiser
Call
CONTACT

