Villa VIA NAZARIO SAURO, 12, Concorezzo
€ 350.000VILLA A SCHIERA NUOVA COSTRUZIONE CONCOREZZO
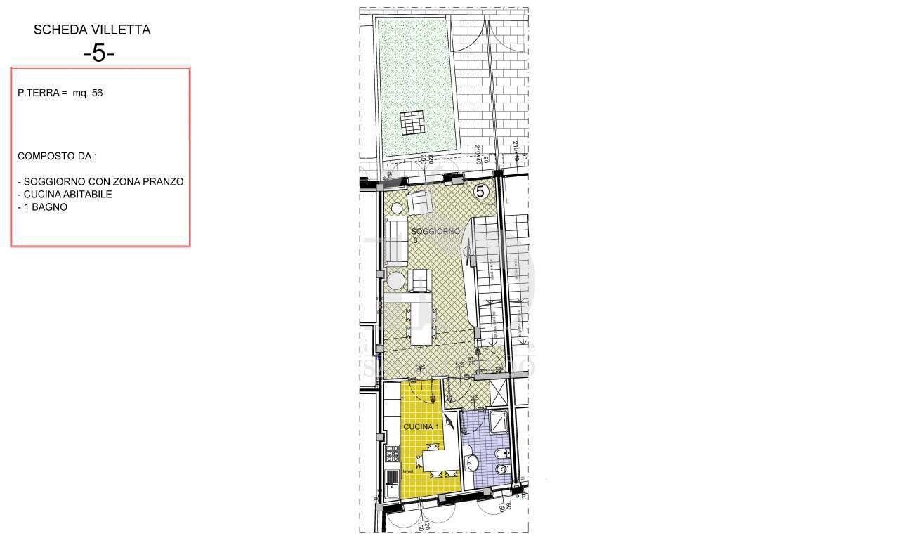
In Via Nazario Sauro, nel centro storico di Concorezzo, villa a schiera semi-indipendente di 150 mq costruita nel 2011, in classe energetica B con garage doppio incluso. Distribuzione funzionale - Soggiorno con accesso al giardino privato di 20 mq - Cucina moderna - 3 camere da letto - 4 bagni - Mansarda open space con terrazzo - Taverna versatile Spazi organizzati su più livelli per garantire privacy, flessibilità e comfort abitativo. - Dotazioni tecniche - Riscaldamento a pavimento - Aria condizionata - Impianto d'allarme - Murature ad alto isolamento termo-acustico Soluzione recente, efficiente e pronta da abitare, in posizione centrale con tutti i servizi raggiungibili a piedi. Prezzo: € 350.000 con garage doppio collegato alla casa incluso nel prezzo. Vendita diretta Immobiliare Santalfredo Tel. 039 6908137 (anche WhatsApp)
Main data
| Reference | HOME 3492_2 |
| Ad date | 20/02/2026 |
| Contract | Sale |
| Typology | Villa |
| Surface | 150 m2 |
| Locals | 4 (4 bedrooms), 3 bathrooms |
| Plan | 2 totals |
Costs
| Price | 350.000 € |
| Price per m2 | 2.333 €/m2 |
| Condominium fees | €208,00/month |
Energy efficiency
| Year built | 2011 |
| Energy rating | B |
Floor plans
Address and map
VIA NAZARIO SAURO, 12, Concorezzo
Mortgage calculation
Selling price:
Advance
20,00
Mortgage
80,00
Rate: -+
Payment: 1.001 per month
The results are an indicative estimate based on the data entered and do not constitute a financial offer.
Advertiser
Call
CONTACT


