Independent house Via Marsala RO, Rovigo
€ 415.000Indipendente - Bifamiliare a Sarzano, Rovigo
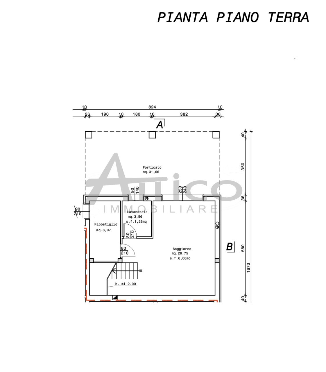
Sarzano - BELLISSIMA e raffinatissima VILLA indipendente CON ANNESSO APP. al PIANO TERRA INDIPENDENTE al P:T. composto da ingresso in soggiorno con angolo cottura,2 letto,bagno ed al P.I° composta da: ampio soggiorno e angolo cottura di 22 mq, 3 letto (2 matrimoniali + singola) + studio, 2 bagni,(1 lavanderia) taverna, terrazzo abitabile e ampio giardino esclusivo. L'immobile dispone inoltre di garage doppio. PERFETTA!!! rif. 1990 Classe B € 415.000
Main data
| Reference | 1990 |
| Ad date | 20/02/2026 |
| Contract | Sale |
| Typology | Independent house |
| Surface | 300 m2 |
| Locals | more than 5 (3 bedrooms, 10 other), 2 bathrooms |
| Plan | 1 totals |
| Number of terraces | 1 |
| Number of balconies | 1 |
Costs
| Price | 415.000 € |
| Price per m2 | 1.383 €/m2 |
Energy efficiency
| Year built | 2018 |
| Energy rating | B |
Floor plans
Address and map
Via Marsala RO, Rovigo
Mortgage calculation
Selling price:
Advance
20,00
Mortgage
80,00
Rate: -+
Payment: 1.187 per month
The results are an indicative estimate based on the data entered and do not constitute a financial offer.
Advertiser

ATTICO Immobiliare
C,so del Popolo incrocio via Ponte Roda 12, Rovigo
Show Phone
Show Mobile
Call
CONTACT

