Villa Via alla Stazione 16, Mele
€ 41.133Indipendente - Singola a Mele
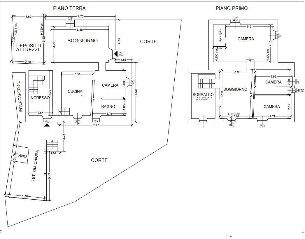
Piena Proprietà dell’immobile ad uso abitazione, sito in Mele (GE), Via alla Stazione, civico n. 16. Trattasi di abitazione su 2 piani, con annessi deposito attrezzi e tettoia chiusa, raggiungibile tramite strada sterrata. L’immobile sviluppa una superficie convenzionale pari a circa mq 216,68 oltre al deposito attrezzi di mq 4,48, la veranda-tettoria di mq 38,71 ed il cortile di mq 28,22.
- Il Prezzo visualizzato è la Base d'Asta in quanto l’immobile è oggetto di esecuzione immobiliare venduto tramite Asta Giudiziaria.
- L'immobile aggiudicato, viene venduto libero e sgombro da persone cose ed ipoteche nello stato di fatto e di diritto in cui si trova.
- Non rappresentiamo il Tribunale, ma lavoriamo nell'esclusivo interesse del potenziale acquirente per garantire un acquisto sicuro.
- I consulenti di ASTE ITALIA ti assisteranno in tutte le attività dell'iter giudiziario dalla visita dell'immobile fino alla consegna chiavi.
- Contatta il nostro Servizio Clienti , i nostri operatori sono a disposizione per chiarire i molteplici dubbi per partecipare alle ASTE.
- Il Prezzo visualizzato è la Base d'Asta in quanto l’immobile è oggetto di esecuzione immobiliare venduto tramite Asta Giudiziaria.
- L'immobile aggiudicato, viene venduto libero e sgombro da persone cose ed ipoteche nello stato di fatto e di diritto in cui si trova.
- Non rappresentiamo il Tribunale, ma lavoriamo nell'esclusivo interesse del potenziale acquirente per garantire un acquisto sicuro.
- I consulenti di ASTE ITALIA ti assisteranno in tutte le attività dell'iter giudiziario dalla visita dell'immobile fino alla consegna chiavi.
- Contatta il nostro Servizio Clienti , i nostri operatori sono a disposizione per chiarire i molteplici dubbi per partecipare alle ASTE.
Main data
| Reference | GE61/22LU-1902-26-1300 |
| Ad date | 27/03/2023 |
| Contract | Sale |
| Typology | Villa |
| Surface | 217 m2 |
| Locals | more than 5 (4 bedrooms, 5 other), 1 bathroom |
| Plan | 2 totals |
Costs
| Price | 41.133 € |
| Price per m2 | 190 €/m2 |
Energy efficiency
| Energy rating | G |
Floor plans
Address and map
Via alla Stazione 16, Mele
Mortgage calculation
Selling price:
Advance
20,00
Mortgage
80,00
Rate: -+
Payment: 118 per month
The results are an indicative estimate based on the data entered and do not constitute a financial offer.
Advertiser
DOMY ONLINE S.R.L.
Via San Lorenzo 5/41, Genova
Show Phone
Show Mobile
Call
CONTACT

