Independent house via pucci 50, Viareggio
€ 500.000
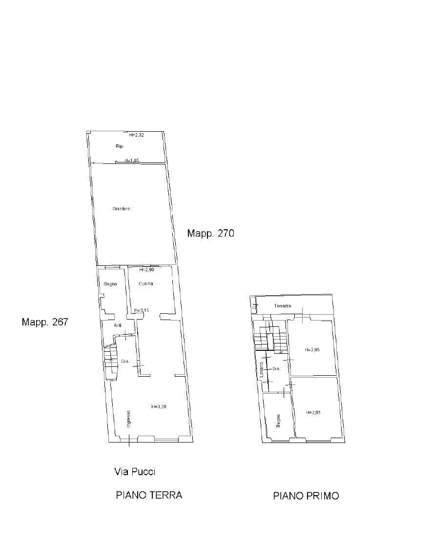
Viareggio Centro Storico. Tipica viareggina a due passi da tutti i principali servizi della zona. Il mare dista 600mt (facilmente raggiungibile sia a piedi che in bicicletta). L'immobile si sviluppa su due livelli. Al piano terra troviamo la zona giorno composta da sala, zona pranzo, cucina, disimpegno e bagno. Al primo piano la zona notte è attualmente composta da due camere, un bagno e terrazza. Il corridoio della zona notte, essendo molto ampio, potrebbe essere organizzato in caso di necessità con armadi a muro (attualmente viene utilizzato come zona lavanderia che potrebbe essere facilmente spostata o sulla terrazza o nel ripostiglio esterno). Dal disimpegno notte si accede alla soffitta mediante botola con scala retrattile dove troviamo un comodo vano per il rimessaggio di tutti quegli oggetti di uso saltuario. A corredo dellabitazione troviamo sul retro lo spazio esterno di circa 40mq comodo per pranzi e cene nelle miti stagioni. Sempre all'esterno ulteriore ripostiglio. Immobile ristrutturato completamente nel 2023. Subito abitabile. Super accessoriato. Dotazioni: - riscaldamento a pavimento con caldaia ibrida pompa di calore e gas (attivabile con comando vocale); - climatizzazione in ogni vano; - parquet in tutta la casa; - isolamento termico fondamenta; - serrande a motore con comandi vocali; - impianto di allarme; - impianto di videosorveglianza; - impianto fotovoltaico 4.5 KW con accumulo 5kw; - cisterna 300L in giardino per recupero acqua di scarto depuratore. Ideale sia come prima casa che come casa vacanze. Gli spazi sono ben organizzati e luminosi. L'indirizzo per motivi di privacy è indicativo della zona ma non riferito all'immobile in oggetto.
Main data
| Reference | 2863 |
| Ad date | 20/02/2026 |
| Contract | Sale |
| Typology | Independent house |
| Surface | 130 m2 |
| Locals | more than 5 (2 bedrooms, 4 other), 2 bathrooms, kitchen habitable |
| Plan | On several levels, 2 totals |
| Construction type | Signorile |
| Occupied | Free |
Costs
| Price | 500.000 € |
| Price per m2 | 3.846 €/m2 |
Energy efficiency
| Status | Partially restored |
| Heating | Autonomous |
| Heating System Type | on the floor |
| Heating Power Type | Photovoltaic |
| Energy rating | A3 |
Floor plans
Address and map
via pucci
50, Viareggio
Ad without map,
try asking the advertiser for the position
try asking the advertiser for the position
Mortgage calculation
Selling price:
Advance
20,00
Mortgage
80,00
Rate: -+
Payment: 1.430 per month
The results are an indicative estimate based on the data entered and do not constitute a financial offer.
Advertiser

Climax Immobiliare
C.so Garibaldi, 127, Viareggio
Show Phone
Show Mobile
Call
CONTACT

