Office Via Antonio Cechov, Milano (neighborhood Gallaratese)
€ 825.000Ufficio in vendita
A Milano, in via Cechov, proponiamo in vendita un ufficio di rappresentanza di 760 mq situato al terzo piano di un centro direzionale. L’immobile si trova direttamente sopra il Centro Commerciale Bonola, la sua posizione strategica garantisce l’accesso immediato a numerosi servizi: bar, ristoranti, supermercati, palestra, oltre ad una eccellente connessione con i mezzi pubblici, grazie alla vicinanza con la fermata della metropolitana M1 Bonola e una comoda uscita verso le principali autostrade.
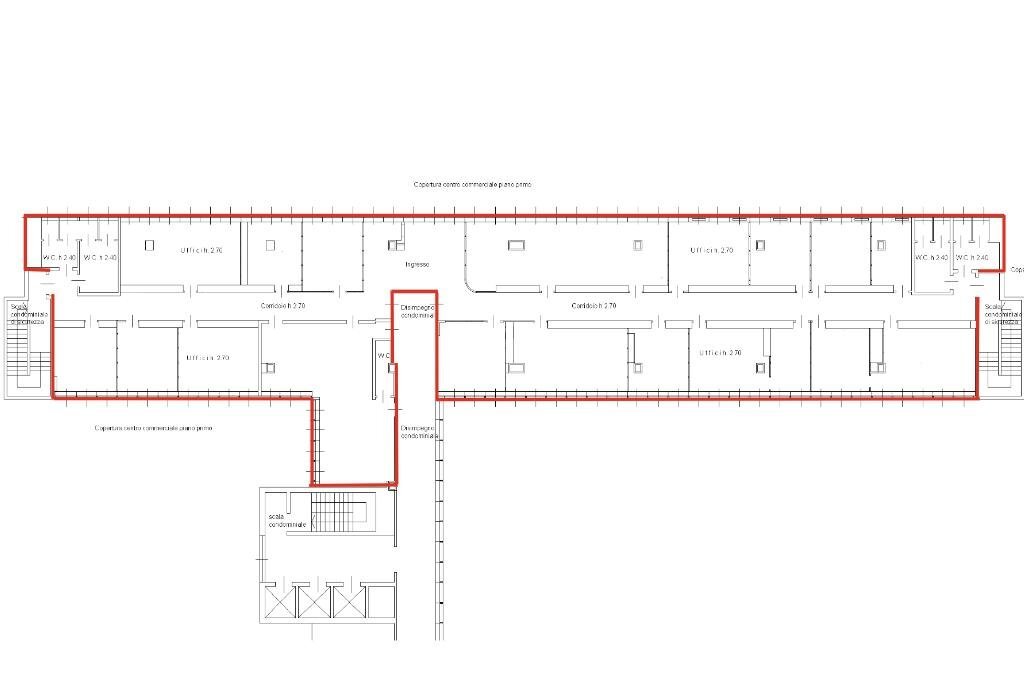
L’ufficio si presenta in buone condizioni e offre spazi ampi, luminosi e razionalmente distribuiti. L’ingresso conduce a una zona accoglienza ben strutturata, che introduce a una varietà di ambienti funzionali: sedici uffici di dimensioni differenti, una grande sala riunioni, un’area relax per le pause caffè e pranzo, e quattro gruppi servizi, uno dei quali progettato per garantire l’accessibilità a persone con disabilità. Le quattro porte di accesso indipendenti rendono l’immobile particolarmente flessibile, offrendo la possibilità di suddividerlo in più unità autonome, ideali per studi associati o attività complementari. Completano la proprietà 25 posti auto al piano interrato, disponibili al prezzo di 5.000 euro ciascuno, per un totale di 125.000 euro. Una soluzione pensata per chi cerca un ambiente professionale, efficiente e ben collegato, in uno dei poli direzionali più pratici e accessibili della città.
Non perdere questa occasione: per maggiori informazioni o per fissare un appuntamento è possibile contattare l’agenzia ai numeri 02 33490059 o 348 0525184; ogni agenzia ha un proprio titolare ed è autonoma. I nostri incaricati sono disponibili dal lunedì al venerdì dalle 9:00 alle 13:00 e dalle 15:00 alle 19:30 e il sabato dalle 9:00 alle 12:30; è inoltre a vostra disposizione uno staff di consulenza creditizia qualificato, in grado di proporre il mutuo più adatto alle vostre possibilità, con possibilità di fissare un incontro gratuito presso i nostri uffici.
L’ufficio si presenta in buone condizioni e offre spazi ampi, luminosi e razionalmente distribuiti. L’ingresso conduce a una zona accoglienza ben strutturata, che introduce a una varietà di ambienti funzionali: sedici uffici di dimensioni differenti, una grande sala riunioni, un’area relax per le pause caffè e pranzo, e quattro gruppi servizi, uno dei quali progettato per garantire l’accessibilità a persone con disabilità. Le quattro porte di accesso indipendenti rendono l’immobile particolarmente flessibile, offrendo la possibilità di suddividerlo in più unità autonome, ideali per studi associati o attività complementari. Completano la proprietà 25 posti auto al piano interrato, disponibili al prezzo di 5.000 euro ciascuno, per un totale di 125.000 euro. Una soluzione pensata per chi cerca un ambiente professionale, efficiente e ben collegato, in uno dei poli direzionali più pratici e accessibili della città.
Non perdere questa occasione: per maggiori informazioni o per fissare un appuntamento è possibile contattare l’agenzia ai numeri 02 33490059 o 348 0525184; ogni agenzia ha un proprio titolare ed è autonoma. I nostri incaricati sono disponibili dal lunedì al venerdì dalle 9:00 alle 13:00 e dalle 15:00 alle 19:30 e il sabato dalle 9:00 alle 12:30; è inoltre a vostra disposizione uno staff di consulenza creditizia qualificato, in grado di proporre il mutuo più adatto alle vostre possibilità, con possibilità di fissare un incontro gratuito presso i nostri uffici.
Main data
| Reference | 61179866 |
| Ad date | 20/02/2026 |
| Contract | Sale |
| Typology | Office |
| Surface | 760 m2 |
| Locals | more than 5 (18 other), 4 bathrooms |
| Plan | 3 from 5 totals |
| Number of parking spaces | 25 |
Costs
| Price | 825.000 € |
| Price per m2 | 1.086 €/m2 |
| Condominium fees | €2900,00/month |
Energy efficiency
| Year built | 1985 |
| Heating Power Type | Other |
| Energy rating | G |
| Energy performance index (EP GL, NREN ) | 264.32 kWh/m3 year |
Floor plans
Video
Address and map
Via Antonio Cechov, Milano - neighborhood Gallaratese
Mortgage calculation
Selling price:
Advance
20,00
Mortgage
80,00
Rate: -+
Payment: 2.359 per month
The results are an indicative estimate based on the data entered and do not constitute a financial offer.
Advertiser
Call
CONTACT

