Independent house VIA LORENZO D'ALESSANDRO, San Severino Marche
€ 280.000
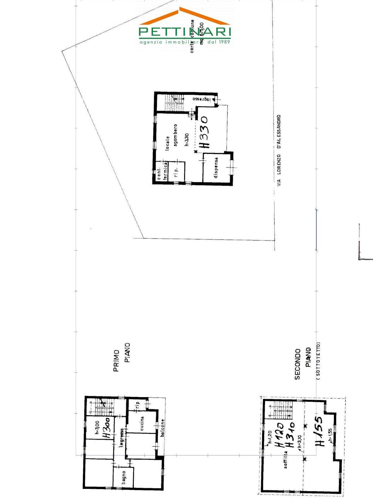
Questa casa singola in vendita a San Severino Marche è una vera e propria opportunità per chi desidera acquistare una proprietà in una zona tranquilla e ben servita. Costruita intorno al 1980, la casa si presenta in ottimo stato manutentivo e gode di una posizione strategica, a pochi passi dal centro città. La proprietà sviluppa una superficie complessiva di circa 224 mq, distribuiti su tre livelli, comprensivi di sottotetto e locale sgombero. Completa la proprietà un comodo garage. Gli interni sono spaziosi e luminosi, grazie alle numerose finestre presenti in ogni stanza, e offrono ampi spazi per vivere comodamente. L'immobile è libero al rogito, quindi disponibile per la vendita immediata, senza vincoli o occupanti. Inoltre, lampio giardino circostante offre la possibilità di organizzare cene allaperto o di godere di piacevoli momenti di relax in unoasi verde. In sintesi, questa casa è lideale per chi cerca una proprietà spaziosa, ben tenuta e in posizione tranquilla ma comoda. Non perdere lopportunità di acquistare la casa dei tuoi sogni! ð² Contattaci ora! Scrivici su WhatsApp al +39 376 03 10 129 per ricevere più informazioni o per fissare una visita e scoprire dal vivo la tua prossima casa.
Main data
| Reference | 968 |
| Ad date | 19/02/2026 |
| Contract | Sale |
| Typology | Independent house |
| Surface | 224 m2 |
| Locals | more than 5 (4 bedrooms, 3 other), 2 bathrooms |
| Plan | 3 totals |
| Occupied | Free |
Costs
| Price | 280.000 € |
| Price per m2 | 1.250 €/m2 |
Energy efficiency
| Heating Power Type | Other |
| Energy rating | Property exempt from energy certification |
Address and map
VIA LORENZO D'ALESSANDRO, San Severino Marche
Ad without map,
try asking the advertiser for the position
try asking the advertiser for the position
Mortgage calculation
Selling price:
Advance
20,00
Mortgage
80,00
Rate: -+
Payment: 801 per month
The results are an indicative estimate based on the data entered and do not constitute a financial offer.
Advertiser

PETTINARI AGENZIA IMMOBILIARE SRL
Via Bramante, 65, Porto Recanati
Show Phone
Show Mobile
Call
CONTACT

