Four-room apartment Via del porto, Bologna (neighborhood Centro Storico)
€ 360.000Quadrilocale in vendita
Quadrilocale luminoso in vendita – Via del Porto 40, Bologna (Centro/Porto)
Proponiamo in vendita quadrilocale di circa 100 mq situato in via del Porto 40, in zona centrale a Bologna, in posizione strategica tra la stazione e il centro storico.
L’immobile si trova in un contesto comodo a tutti i servizi, a pochi minuti a piedi da Piazza Maggiore, dalle principali vie dello shopping, dalle sedi universitarie e da luoghi d’interesse come il MAMbo – Museo d’Arte Moderna. La zona è ben servita da mezzi pubblici, attività commerciali, supermercati e parcheggi, risultando ideale sia per famiglie sia per investimento.
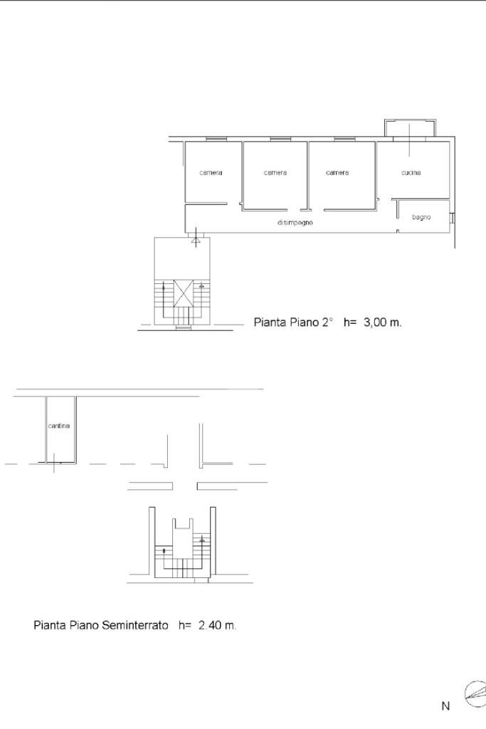
L’appartamento,interno rispetto alla via principale, risulta particolarmente silenzioso e riservato, si sviluppa su una superficie di circa 100 mq ed è composto da soggiorno luminoso, cucina abitabile separata, tre camere da letto di generose dimensioni, bagno finestrato, balcone e cantina di la proprietà la possibilità di usufruire di un posto auto non assegnato all’interno dell’area condominiale.
Gli ambienti sono ben distribuiti e godono di ottima luminosità grazie alle ampie finestre e alla buona esposizione. La metratura e la disposizione interna permettono diverse soluzioni di riorganizzazione degli spazi.
Presente la possibilità di frazionamento in due unità abitative, caratteristica che rende l’immobile particolarmente interessante anche per chi è alla ricerca di un investimento in una delle zone più richieste della città.
Soluzione adatta a chi desidera vivere in centro con spazi comodi oppure a chi cerca un immobile da valorizzare in posizione centrale e strategica.
PER INFORMAZIONI O PER FISSARE UNA VISITA NON ESITARE A CHIAMARE IL NUMERO: 051/4071883.
Proponiamo in vendita quadrilocale di circa 100 mq situato in via del Porto 40, in zona centrale a Bologna, in posizione strategica tra la stazione e il centro storico.
L’immobile si trova in un contesto comodo a tutti i servizi, a pochi minuti a piedi da Piazza Maggiore, dalle principali vie dello shopping, dalle sedi universitarie e da luoghi d’interesse come il MAMbo – Museo d’Arte Moderna. La zona è ben servita da mezzi pubblici, attività commerciali, supermercati e parcheggi, risultando ideale sia per famiglie sia per investimento.
L’appartamento,interno rispetto alla via principale, risulta particolarmente silenzioso e riservato, si sviluppa su una superficie di circa 100 mq ed è composto da soggiorno luminoso, cucina abitabile separata, tre camere da letto di generose dimensioni, bagno finestrato, balcone e cantina di la proprietà la possibilità di usufruire di un posto auto non assegnato all’interno dell’area condominiale.
Gli ambienti sono ben distribuiti e godono di ottima luminosità grazie alle ampie finestre e alla buona esposizione. La metratura e la disposizione interna permettono diverse soluzioni di riorganizzazione degli spazi.
Presente la possibilità di frazionamento in due unità abitative, caratteristica che rende l’immobile particolarmente interessante anche per chi è alla ricerca di un investimento in una delle zone più richieste della città.
Soluzione adatta a chi desidera vivere in centro con spazi comodi oppure a chi cerca un immobile da valorizzare in posizione centrale e strategica.
PER INFORMAZIONI O PER FISSARE UNA VISITA NON ESITARE A CHIAMARE IL NUMERO: 051/4071883.
Main data
| Reference | 61179539 |
| Ad date | 19/02/2026 |
| Contract | Sale |
| Typology | Apartment |
| Surface | 100 m2 |
| Locals | 4 (4 other), 1 bathroom |
| Number of parking spaces | 1 |
Costs
| Price | 360.000 € |
| Price per m2 | 3.600 €/m2 |
| Condominium fees | €67,00/month |
Energy efficiency
| Year built | 1950 |
| Heating | Autonomous |
| Heating Power Type | Methane |
| Energy rating | F |
| Energy performance index (EP GL, REN ) | 291.13 kWh/m3 year |
| Energy performance index (EP GL, NREN ) | 291.13 kWh/m3 year |
Floor plans
Video
Address and map
Via del porto, Bologna - neighborhood Centro Storico
Mortgage calculation
Selling price:
Advance
20,00
Mortgage
80,00
Rate: -+
Payment: 1.030 per month
The results are an indicative estimate based on the data entered and do not constitute a financial offer.
Advertiser
Call
CONTACT

