Semi-detached house Piazza Adolfo Tedeschi, Luzzara
€ 105.000Casa semindipendente in vendita
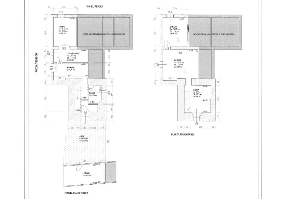
Nel centro del comune di Luzzara, proponiamo in vendita una casa semindipendente di 100 mq, ideale per chi cerca una soluzione abitativa con ingresso indipendente. Questa porzione di casa, costruita nel 1930 e ristrutturata negli anni '60, si sviluppa su due livelli e offre spazi ben distribuiti. Al piano terra, l'ingresso conduce alla cucina separata dal soggiorno e al corridoio che da cui si accede ai servizi ed al discreto cortile privato, perfetto per godere di momenti di relax. Al piano superiore, si trovano due camere da letto luminose, precedute da un ampio disimpegno. La proprietà è completata dall'ampia cantina raggiungibile dal cortile esterno privato. Situata nel centro di Luzzara, questa casa ha visto il rifacimento del tetto nel 2012 ed è libera subito, pronta per accogliere i nuovi proprietari. Una soluzione ideale per chi desidera vivere in un contesto tranquillo, senza rinunciare alla comodità dei servizi cittadini.
Per ulteriori informazioni e per visitare l'immobile chiama il 351-5965686 oppure scrivi a
Se oltre all’acquisto della tua nuova casa hai bisogno di vendere quella attuale, contattaci. Le nostre valutazioni sono sempre gratuite e senza impegno.
Ricorda inoltre che i nostri consulenti del credito sono sempre a tua disposizione per offrirti una consulenza personalizzata per mutui e finanziamenti su misura per le tue esigenze.
Visita le nostre pagine social:
Facebook: Gruppo Tecnocasa Novellara
Instagram: tecnocasa_novellara
Per ulteriori informazioni e per visitare l'immobile chiama il 351-5965686 oppure scrivi a
Se oltre all’acquisto della tua nuova casa hai bisogno di vendere quella attuale, contattaci. Le nostre valutazioni sono sempre gratuite e senza impegno.
Ricorda inoltre che i nostri consulenti del credito sono sempre a tua disposizione per offrirti una consulenza personalizzata per mutui e finanziamenti su misura per le tue esigenze.
Visita le nostre pagine social:
Facebook: Gruppo Tecnocasa Novellara
Instagram: tecnocasa_novellara
Main data
| Reference | 61178329 |
| Ad date | 18/02/2026 |
| Contract | Sale |
| Typology | Semi-detached house |
| Surface | 100 m2 |
| Locals | 4 (4 other), 1 bathroom |
| Plan | 1 from 2 totals |
Costs
| Price | 105.000 € |
| Price per m2 | 1.050 €/m2 |
Energy efficiency
| Year built | 1930 |
| Heating | Autonomous |
| Heating Power Type | Methane |
| Energy rating | G |
| Energy performance index (EP GL, REN ) | 0.84 kWh/m3 year |
| Energy performance index (EP GL, NREN ) | 351.97 kWh/m3 year |
Floor plans
Video
Address and map
Piazza Adolfo Tedeschi, Luzzara
Mortgage calculation
Selling price:
Advance
20,00
Mortgage
80,00
Rate: -+
Payment: 300 per month
The results are an indicative estimate based on the data entered and do not constitute a financial offer.
Advertiser
Call
CONTACT

