Independent house Strada statale 35 bis dei Giovi, Bosco Marengo
€ 67.000Casa indipendente in vendita
CASA INDIPENDENTE (ADATTABILE A BIFAMILIARE) CON AMPIO TERRENO E LOCALI ACCESSORI - BOSCO MARENGO
In posizione strategica a Bosco Marengo, a pochi minuti da Alessandria e Novi Ligure, proponiamo una casa indipendente su quattro lati con ampio terreno di proprietà, una soluzione che unisce privacy, potenzialità e libertà progettuale.
È la tipologia ideale per chi desidera un’abitazione da modellare sulle proprie esigenze, investendo su spazi autentici e su un contesto ben collegato ma lontano dal traffico.
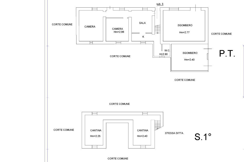
La casa si sviluppa su due livelli e, grazie alla distribuzione interna, si presta perfettamente anche a una configurazione bifamiliare. Al piano terra l’ingresso conduce nella zona giorno, dove il soggiorno gode di una piacevole luminosità naturale, cucinino funzionale e due camere da letto, di cui una particolarmente ampia, e con un bagno dotato di doccia.
Salendo al piano superiore si ritrova una seconda unità abitativa con cucinino e tinello di generose dimensioni, due camere matrimoniali e un bagno con vasca, ambienti che permettono una gestione flessibile degli spazi, ideale per famiglie numerose o per chi desidera creare una soluzione indipendente per genitori e figli. Completa l’abitazione una comoda cantina.
All’esterno si apre un mondo di possibilità. Il terreno che circonda la proprietà su tutti e quattro i lati garantisce riservatezza e offre lo spazio perfetto per chi sogna un giardino strutturato, un’area relax o un progetto più ambizioso. I quattro locali di sgombero, l’ampio ricovero attrezzi e la tettoia di dimensioni importanti rappresentano un valore concreto per chi cerca spazi accessori versatili, ideali anche per attività hobbistiche o professionali. Il tetto si presenta in ottime condizioni, il riscaldamento è alimentato a gasolio e sono presenti due pozzi.
Una proprietà con carattere, solida nella struttura e ricca di potenziale, perfetta per chi vuole investire in una casa indipendente da personalizzare e trasformare in un progetto di vita su misura.
In posizione strategica a Bosco Marengo, a pochi minuti da Alessandria e Novi Ligure, proponiamo una casa indipendente su quattro lati con ampio terreno di proprietà, una soluzione che unisce privacy, potenzialità e libertà progettuale.
È la tipologia ideale per chi desidera un’abitazione da modellare sulle proprie esigenze, investendo su spazi autentici e su un contesto ben collegato ma lontano dal traffico.
La casa si sviluppa su due livelli e, grazie alla distribuzione interna, si presta perfettamente anche a una configurazione bifamiliare. Al piano terra l’ingresso conduce nella zona giorno, dove il soggiorno gode di una piacevole luminosità naturale, cucinino funzionale e due camere da letto, di cui una particolarmente ampia, e con un bagno dotato di doccia.
Salendo al piano superiore si ritrova una seconda unità abitativa con cucinino e tinello di generose dimensioni, due camere matrimoniali e un bagno con vasca, ambienti che permettono una gestione flessibile degli spazi, ideale per famiglie numerose o per chi desidera creare una soluzione indipendente per genitori e figli. Completa l’abitazione una comoda cantina.
All’esterno si apre un mondo di possibilità. Il terreno che circonda la proprietà su tutti e quattro i lati garantisce riservatezza e offre lo spazio perfetto per chi sogna un giardino strutturato, un’area relax o un progetto più ambizioso. I quattro locali di sgombero, l’ampio ricovero attrezzi e la tettoia di dimensioni importanti rappresentano un valore concreto per chi cerca spazi accessori versatili, ideali anche per attività hobbistiche o professionali. Il tetto si presenta in ottime condizioni, il riscaldamento è alimentato a gasolio e sono presenti due pozzi.
Una proprietà con carattere, solida nella struttura e ricca di potenziale, perfetta per chi vuole investire in una casa indipendente da personalizzare e trasformare in un progetto di vita su misura.
Main data
| Reference | 61176616 |
| Ad date | 12/02/2026 |
| Contract | Sale |
| Typology | Independent house |
| Surface | 413 m2 |
| Locals | more than 5 (6 other), 2 bathrooms |
| Plan | 2 from 2 totals |
| Number of parking spaces | 5 |
Costs
| Price | 67.000 € |
| Price per m2 | 162 €/m2 |
Energy efficiency
| Year built | 1940 |
| Heating | Autonomous |
| Heating Power Type | Diesel |
| Energy rating | G |
| Energy performance index (EP GL, NREN ) | 351.05 kWh/m3 year |
Floor plans
Video
Address and map
Strada statale 35 bis dei Giovi, Bosco Marengo
Mortgage calculation
Selling price:
Advance
20,00
Mortgage
80,00
Rate: -+
Payment: 192 per month
The results are an indicative estimate based on the data entered and do not constitute a financial offer.
Advertiser
Call
CONTACT

