Three-room apartment Via Gaetano Donizzetti, Gatteo
€ 215.000Trilocale in vendita
GATTEO MARE
Nel cuore di Gatteo a Mare, proponiamo un appartamento di 55 mq, situato in un contesto residenziale tranquillo e ben servito. L'immobile, costruito nel 1980, è stato completamente ristrutturato nel 2025, offrendo un ambiente moderno e funzionale.
La soluzione è situata al primo piano di una palazzina senza ascensore.
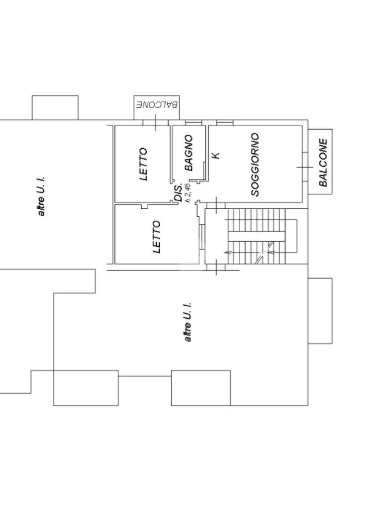
L'appartamento si compone di tre locali ben distribuiti, un comodo soggiorno angolo cottura con porta finestra che ci permette di accedere a balcone. Procedendo verso la zona notte, troveremo due camere da letto matrimoniali di cui una con balcone e un comodo bagno finestrato e dotato di box doccia.
Il riscaldamento a pavimento garantisce un calore uniforme e un notevole risparmio energetico. E’ presente inoltre la predisposizione per l’aria condizionata.
Completano la proprietà un garage di proprietà e un posto auto assegnato, che assicurano comodità e sicurezza per il parcheggio.
Questa proposta rappresenta un'opportunità interessante per chi desidera vivere in una zona strategica, a pochi passi dal mare e dai principali servizi.
CHIAMACI per ulteriori informazioni o per fissare un appuntamento allo 0547.85938 oppure inviaci una mail e sarai ricontattato al più presto.
Nel cuore di Gatteo a Mare, proponiamo un appartamento di 55 mq, situato in un contesto residenziale tranquillo e ben servito. L'immobile, costruito nel 1980, è stato completamente ristrutturato nel 2025, offrendo un ambiente moderno e funzionale.
La soluzione è situata al primo piano di una palazzina senza ascensore.
L'appartamento si compone di tre locali ben distribuiti, un comodo soggiorno angolo cottura con porta finestra che ci permette di accedere a balcone. Procedendo verso la zona notte, troveremo due camere da letto matrimoniali di cui una con balcone e un comodo bagno finestrato e dotato di box doccia.
Il riscaldamento a pavimento garantisce un calore uniforme e un notevole risparmio energetico. E’ presente inoltre la predisposizione per l’aria condizionata.
Completano la proprietà un garage di proprietà e un posto auto assegnato, che assicurano comodità e sicurezza per il parcheggio.
Questa proposta rappresenta un'opportunità interessante per chi desidera vivere in una zona strategica, a pochi passi dal mare e dai principali servizi.
CHIAMACI per ulteriori informazioni o per fissare un appuntamento allo 0547.85938 oppure inviaci una mail e sarai ricontattato al più presto.
Main data
| Reference | 61176109 |
| Ad date | 12/02/2026 |
| Contract | Sale |
| Typology | Apartment |
| Surface | 55 m2 |
| Locals | 3 (3 other), 1 bathroom |
| Plan | 1 from 3 totals |
| Number of parking spaces | 1 |
Costs
| Price | 215.000 € |
| Price per m2 | 3.909 €/m2 |
| Condominium fees | €42,00/month |
Energy efficiency
| Year built | 1980 |
| Heating | Autonomous |
| Heating Power Type | Methane |
| Energy rating | F |
| Energy Performance Index (IPE) | - |
Floor plans
Video
Address and map
Via Gaetano Donizzetti, Gatteo
Mortgage calculation
Selling price:
Advance
20,00
Mortgage
80,00
Rate: -+
Payment: 615 per month
The results are an indicative estimate based on the data entered and do not constitute a financial offer.
Advertiser
Call
CONTACT

