Independent house Località Prese, 1, Roncegno Terme
€ 270.000Baita in Vendita a Le Prese, Roncegno Terme
Scopri questa incantevole baita immersa nel verde in località Le Prese, nel comune di Roncegno Terme. Questo immobile, libero su quattro lati, offre un'atmosfera accogliente e tranquilla, perfetta per chi cerca una fuga dalla vita quotidiana. Con una superficie commerciale di 266 m² e 230 m² calpestabili, la baita si sviluppa su due livelli e dispone di ben 7 locali e 7 bagni, ideali per famiglie numerose o per chi desidera avviare un'attività di agriturismo. La struttura, costruita nel 1980, è stata adibita ad agriturismo negli anni '90 e presenta una parte di stalla e un fienile a tutta altezza, che possono essere facilmente trasformati in spazi abitativi aggiuntivi. Il progetto di ampliamento è già approvato, offrendo l'opportunità di personalizzare ulteriormente questo gioiello montano. Goditi il tuo tempo all'aperto grazie al giardino privato, dove potrai ammirare panorami mozzafiato. La baita è dotata di acqua ed energia elettrica, che garantisce comfort in ogni stagione. Con orientamento su tutti i lati (Nord, Sud, Est e Ovest), questo immobile è perfetto per chi ama il sole e la natura. Non perdere l'occasione di possedere un angolo di paradiso!
Main data
| Reference | mdm Le Prese |
| Ad date | 03/12/2025 |
| Contract | Sale |
| Typology | Independent house |
| Surface | 266 m2 |
| Locals | more than 5 (3 bedrooms, 4 other), 7 bathrooms, kitchen habitable |
| Plan | 2 totals |
| Number of balconies | 1 |
Costs
| Price | 270.000 € |
| Price per m2 | 1.015 €/m2 |
Energy efficiency
| Year built | 1980 |
| Status | To be restored |
| Heating | Autonomous |
| Energy rating | Property exempt from energy certification |
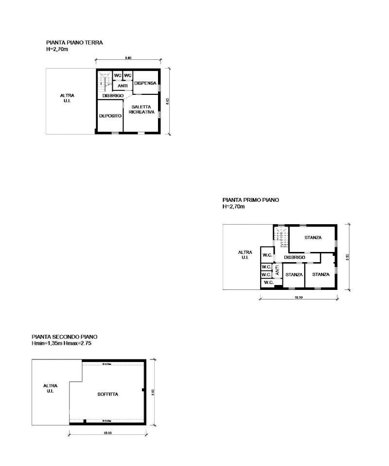
Floor plans
Address and map
Località Prese, 1, Roncegno Terme
Mortgage calculation
Selling price:
Advance
20,00
Mortgage
80,00
Rate: -+
Payment: 772 per month
The results are an indicative estimate based on the data entered and do not constitute a financial offer.
Advertiser

EVENTA
Via dei MIlle 42, Torino
Show Phone
Call
CONTACT

