Attic via Bernardino Verro, Milano
€ 510.000ATTICO in vendita in zona Bocconi/Scalo Romana
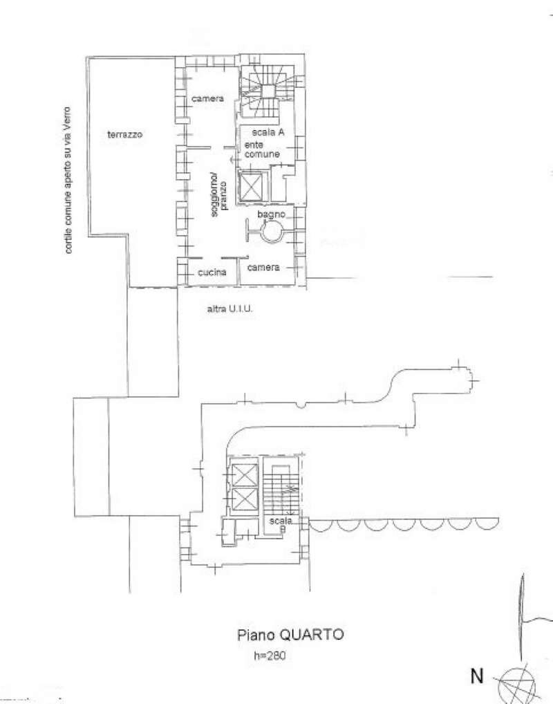
AD. ZE BOCCONI/SCALO ROMANA esattamente in via Bernardino Verro, in un contesto signorile recente (con portineria) e aree comuni esclusive, con sala fitness e piscina, proponiamo un luminoso Attico con un terrazzo di 80 mq , vivibile e perfetto per trascorrere piacevoli momenti con famiglia e amici. L' appartamento ( di mq 80) in ottime condizioni si sviluppa con ampia zona living composta da soggiorno e cucinotto da cui si accede al terrazzo, da due camere (di cui una matrimoniale) e da un bagno con doccia.
La soluzione è dotata di impianti centralizzati di aria condizionata e riscaldamento di nuova generazione (con conta calorie) e di sistema di allarme.
L'immobile si completa di un box al piano S1 (collegato con l'ascensore) a € 38.000,00 a parte.
La zona dove dove è inserito l'immobile è strategica tra l'università Bocconi, l'area di Fondazione Prada e dello Scalo Romana e ben collegata con i principali mezzi di superficie, tram 24 (che collega al centro/Duomo), bus 90/91, 95, 65, dal passante ferroviario fermata Tibaldi e non lontano dalle fermate M.M. P.le Lodi (linea gialla), Romolo (linea verde) e ben servita da negozi, supermercati e scuole. Inoltre nella zona troviamo ampi spazi verdi per praticare attività sportive all' aperto.
Per maggiori informazioni LINEA CASA MILANO NAVIGLI, via E.Torricelli 10 - 20136 Milano, mobile +39 3346698575 anche whatsapp - [email protected] - T.0289423519
La soluzione è dotata di impianti centralizzati di aria condizionata e riscaldamento di nuova generazione (con conta calorie) e di sistema di allarme.
L'immobile si completa di un box al piano S1 (collegato con l'ascensore) a € 38.000,00 a parte.
La zona dove dove è inserito l'immobile è strategica tra l'università Bocconi, l'area di Fondazione Prada e dello Scalo Romana e ben collegata con i principali mezzi di superficie, tram 24 (che collega al centro/Duomo), bus 90/91, 95, 65, dal passante ferroviario fermata Tibaldi e non lontano dalle fermate M.M. P.le Lodi (linea gialla), Romolo (linea verde) e ben servita da negozi, supermercati e scuole. Inoltre nella zona troviamo ampi spazi verdi per praticare attività sportive all' aperto.
Per maggiori informazioni LINEA CASA MILANO NAVIGLI, via E.Torricelli 10 - 20136 Milano, mobile +39 3346698575 anche whatsapp - [email protected] - T.0289423519
Main data
| Reference | N20 |
| Ad date | 05/02/2026 |
| Contract | Sale |
| Typology | Attic |
| Surface | 102 m2 |
| Locals | 3 (2 bedrooms, 1 other), 1 bathroom, kitchen small kitchen |
| Plan | 4 from 4 totals |
| Construction type | Signorile |
| Number of terraces | 1 |
| Garage | Single |
Costs
| Price | 510.000 € |
| Price per m2 | 5.000 €/m2 |
| Condominium fees | €380,00/month |
Energy efficiency
| Status | Excellent |
| Heating | Centralized |
| Heating Power Type | Methane |
| Energy rating | D |
| Energy Performance Index (IPE) | 115.5 kWh/m2 year |
Floor plans
Address and map
via Bernardino Verro, Milano
Mortgage calculation
Selling price:
Advance
20,00
Mortgage
80,00
Rate: -+
Payment: 1.459 per month
The results are an indicative estimate based on the data entered and do not constitute a financial offer.
Advertiser
Call
CONTACT


