Four-room apartment via Aldo Moro 42, Robbiate
€ 230.000
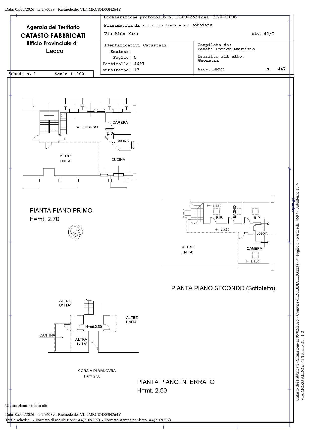
In vendita a Robbiate, in zona Semi Centro, si trova questo spazioso e luminoso appartamento in ottime condizioni. La sua posizione strategica permette di raggiungere facilmente tutti i servizi principali e le attività commerciali della zona.L'immobile, libero al rogito, si sviluppa su due livelli ed è stato costruito nel 2004. Si estende su una superficie totale di 140 metri quadrati, di cui 130 calpestabili, e si compone di 4 locali, tra cui 3 camere da letto e 2 bagni e uno studio, piano primo soggiorno, cucina, studio, bagno e tre balconi, paino mansarda due camere singole, camera matrimoniale, bagno e loggiato. Grazie alla sua disposizione su due livelli, l'appartamento risulta particolarmente ampio e confortevole.Il riscaldamento è autonomo e alimentato a metano. L'appartamento è inoltre dotato di infissi e finestre a doppio vetro in legno, per garantire un buon isolamento termico e acustico.Lo stato di conservazione dell'immobile è buono e non richiede particolari interventi di ristrutturazione. L'appartamento è inoltre venduto non arredato, offrendo così la possibilità di personalizzarlo secondo le proprie esigenze e gusti. L'immobile gode di una doppia esposizione, a nord e sud, che garantisce una buona luminosità in ogni momento della giornata. Inoltre, sono presenti tre balconi che offrono uno spazio esterno dove poter godere del bel tempo e del panorama circostante.Completa la proprietà una cantina e box auto doppio quantificato in euro 30.000,00, ideale per riporre oggetti di vario genere. Le spese condominiali ammontano a 85 euro al mese.In sintesi, questo appartamento in vendita a Robbiate è una soluzione ideale per chi cerca un'abitazione spaziosa, ben tenuta e in una posizione comoda e servita. La sua disposizione su due livelli e la presenza di un box auto e cantina lo rendono perfetto per una famiglia numerosa o per chi desidera avere spazi ampi e confortevoli.
Main data
| Reference | 1407 |
| Ad date | 12/02/2026 |
| Contract | Sale |
| Typology | Apartment |
| Surface | 140 m2 |
| Locals | 4 (3 bedrooms, 1 other), 2 bathrooms, kitchen habitable |
| Plan | On several levels, 2 totals |
| Construction type | Average |
| Occupied | Free |
| Garage | Double |
| Furniture | Absent |
Costs
| Price | 230.000 € |
| Price per m2 | 1.643 €/m2 |
Energy efficiency
| Status | Good |
| Heating | Autonomous |
| Energy rating | D |
| Energy Performance Index (IPE) | 115 kWh/m2 year |
Floor plans
Address and map
via Aldo Moro
42, Robbiate
Ad without map,
try asking the advertiser for the position
try asking the advertiser for the position
Mortgage calculation
Selling price:
Advance
20,00
Mortgage
80,00
Rate: -+
Payment: 658 per month
The results are an indicative estimate based on the data entered and do not constitute a financial offer.
Advertiser

Puntocasa Robbiate sas
via Colleoni 105, Robbiate
Show Phone
Show Mobile
Call
CONTACT

