Warehouse via Vecchia Fiorentina Tronco 1, 86A, Quarrata
€ 10.000.000CAPANNONE/MAGAZZINO IN COSTRUZIONE – QUARRATA (PT)
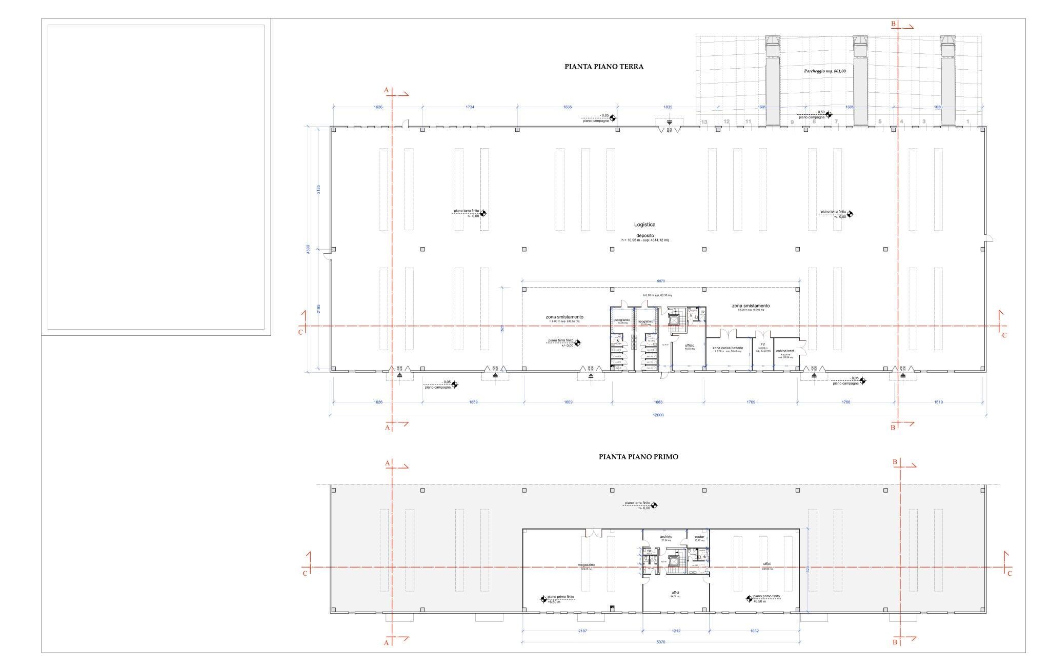
In posizione strategica nel cuore della Toscana, Sogeicom propone in vendita un nuovo fabbricato logistico-industriale di prossima realizzazione, con inizio lavori previsto per marzo 2026 e consegna entro la fine dell’anno. Caratteristiche principali - Realizzazione completamente personalizzabile - Il progetto può essere adattato alle specifiche esigenze dell’utilizzatore finale, sia in termini di layout che di dotazioni funzionali, per garantire la massima efficienza operativa. Tempistiche certe: - Avvio lavori: marzo 2026 - Consegna prevista entro dicembre 2026, ideale per aziende che necessitano di pianificazione rapida e affidabile. Location altamente strategica Il fabbricato sorgerà a Quarrata (PT), in posizione baricentrica e perfettamente collegata alle Province di Prato, Pistoia e Firenze, uno dei poli produttivi e logistici più dinamici della regione. Soluzione ideale per logistica e attività industriali Immobile pensato per rispondere agli standard moderni del settore logistico-produttivo, con spazi funzionali e razionali. Perché scegliere questa opportunità: ✔ Personalizzazione del progetto ✔ Consegna rapida entro l’anno ✔ Posizione centrale e strategica ✔ Investimento di valore in un’area ad alta domanda ???? Contattaci per maggiori informazioni, planimetrie e per valutare insieme le personalizzazioni possibili. Un’opportunità unica per realizzare la tua sede operativa su misura, nel cuore della Toscana.
Main data
| Reference | ID2972918 |
| Ad date | 09/02/2026 |
| Contract | Sale |
| Typology | Warehouse |
| Surface | 6100 m2 |
| Plan | 1 totals |
| Real estate use | Commercial and Industrial |
Costs
| Price | 10.000.000 € |
| Price per m2 | 1.639 €/m2 |
Energy efficiency
| Energy rating | Property exempt from energy certification |
Floor plans
Address and map
via Vecchia Fiorentina Tronco 1, 86A, Quarrata
Ad without map,
try asking the advertiser for the position
try asking the advertiser for the position
Mortgage calculation
Selling price:
Advance
20,00
Mortgage
80,00
Rate: -+
Payment: 28.600 per month
The results are an indicative estimate based on the data entered and do not constitute a financial offer.
Advertiser

So.ge.i.com. srl
Via Feltrina, Treviso
Show Phone
Call
CONTACT

