Villa Via Pietro Micca 11, Villa Cortese
€ 320.000
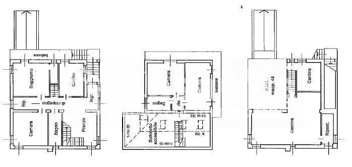
Proponiamo in vendita a Villa Cortese, nell'immediate vicinanze del centro cittadino e delle scuole, villa singola con affaccio sui quattro lati della casa con area cortilizia esterna pavimentata a nuovo di 200/250 metri-quadrati ca. e piccolo giardino privato attrezzato con area barbecue, oltre a mansarda ed ampia cantina con locale tecnico, lavanderia, cantina dei vini con la possibilità di trasformare questi spazi accessori in un locale taverna. Al piano rialzato, un disimpegno d'ingresso piuttosto ampio da accesso ad una sala da pranzo con una scala lignea con orditura in ferro per accedere al piano mansardato, affiancata un'ampia cucina abitabile il soggiorno, una camera matrimoniale con un locale adibito a cabina armadio ed un bagno con vasca. Una balconata lungo il perimetro della casa serve la zona giorno e il doppio affaccio di ognuna delle stanze dona agli spazi un'ottima luminosità naturale. La scala interna che conduce al piano superiore sbarca in una zona agibile e non abitabile con travi in legno a vista utilizzabile come studio e/o seconda zona living, la luce di questi ambienti è zenitale perché fornita da serramenti di tipo "velux". Un disimpegno conduce ancora alla zona notte completamente abitabile, dove due ampie e luminose camere matrimoniali servite da balcone ed un bagno finestrato, completano la proprietà. Al piano seminterrato abbiamo accesso ad un ampio locale garage, con i locali tecnici sopra elencati. La proprietà è libera su quattro lati, gode di portoncino blindato, infissi in legno doppio vetro, parquet in ottime condizioni nelle camere ed in sala da pranzo, ceramiche negli altri ambienti. E' installato un impianto d'allarme e di condizionamento al solo primo piano. Il tetto è stato rifatto recentemente con la coibentazione dello stesso e del solaio. Libero subito.
Main data
| Reference | 305719 |
| Ad date | 11/02/2026 |
| Contract | Sale |
| Typology | Villa |
| Surface | 257 m2 |
| Locals | 5 (4 bedrooms, 1 other), 2 bathrooms, kitchen habitable |
| Plan | On several levels, 2 totals |
| Construction type | Signorile |
| Occupied | Free |
| Garage | Single |
| Furniture | Partial |
Costs
| Price | 320.000 € |
| Price per m2 | 1.245 €/m2 |
Energy efficiency
| Status | Good |
| Heating | Autonomous |
| Energy rating | F |
| Energy Performance Index (IPE) | 260 kWh/m2 year |
Floor plans
Video
Address and map
Via Pietro Micca
11, Villa Cortese
Ad without map,
try asking the advertiser for the position
try asking the advertiser for the position
Mortgage calculation
Selling price:
Advance
20,00
Mortgage
80,00
Rate: -+
Payment: 915 per month
The results are an indicative estimate based on the data entered and do not constitute a financial offer.
Advertiser

Progefin srl
Via Macello 2/4, Legnano
Show Phone
Call
CONTACT

