Commercial Premises Via di Poggio Gagliardo 11, Montescudaio
€ 350.000Capannone - Industriale a Poggio Gagliardo , Montescudaio
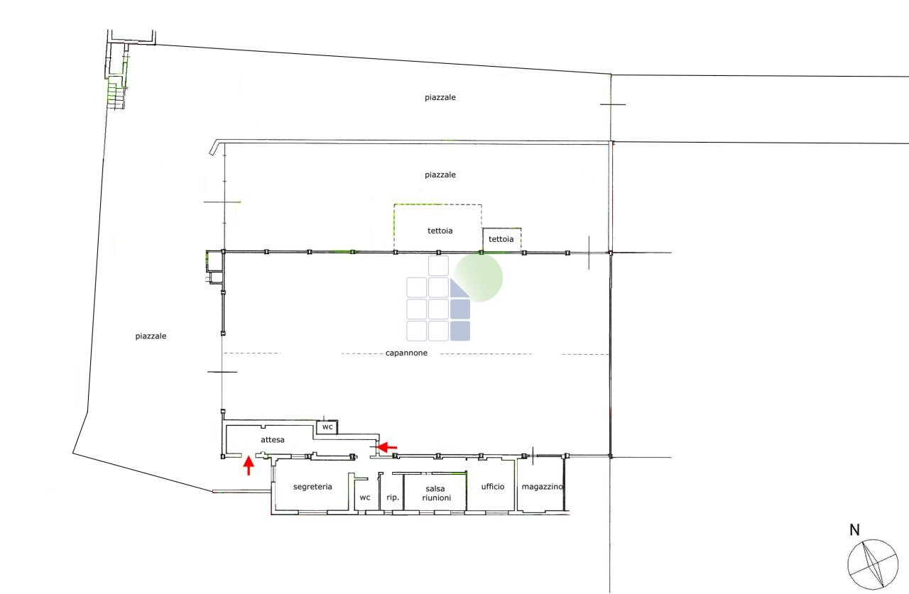
CAPANNONE IN VENDITA - LOC.TA' POGGIO GAGLIARDO MONTESCUDAIO ad Euro 350.000 Nella zona artigianale di Cecina (LI) proponiamo la vendita di ampio Capannone di 420 mq., con grande piazzale recintato di 1.000 mq. dotato di cancello automatizzato, ed uffici per 75 mq., tutto in buonissime condizioni, situato nel comune di Montescudaio. Ideale per imprese che cercano una soluzione pronta all’uso in un contesto industriale dinamico e funzionale. L’immobile si sviluppa su una superficie di totale di circa 500 mq., di cui il capannone si presenta con due grandi portoni carrabili e altezza interna minima di 4 metri e massima di 7 metri, zona spogliatoi e docce per gi operai. Il capannone è collegato agli uffici da una porta secondaria che dà accesso all'ingresso principale dove è ubicata la zona di attesa e la segreteria. Nel disimpegno troviamo una comoda sala riunioni, l'ufficio direzionale, il servizio con doccia ed il ripostiglio. Tutti i locali principali sono climatizzati e riscaldati. La versatilità dello spazio lo rende idoneo a diverse attività logistiche o produttive, offrendo una pianta aperta ma sfruttabile al meglio per uffici, magazzino e zona servizio. Classe energetica G. Tra i punti di forza si distinguono il piazzale disponibile, gli uffici integrati al capannone e la vicinanza alla Variante Aurelia, che facilita collegamenti stradali e logistici. L’azienda che cerca visibilità e accessibilità potrà apprezzare la combinazione di spazi ampi, servizi essenziali e infrastrutture pronte all’uso. Se desideri saperne di più o fissare una visita, contattaci per valutare subito questa opportunità di vendita in una zona strategica della provincia. Riferimento annuncio n.3512
Main data
| Reference | 3512 |
| Ad date | 05/02/2026 |
| Contract | Sale |
| Typology | Commercial Premises |
| Surface | 500 m2 |
| Locals | 4 (4 other), 2 bathrooms |
| Plan | 1 totals |
| Number of parking spaces | 1 |
Costs
| Price | 350.000 € |
| Price per m2 | 700 €/m2 |
Energy efficiency
| Year built | 1970 |
| Energy rating | G |
Floor plans
Address and map
Via di Poggio Gagliardo 11, Montescudaio
Mortgage calculation
Selling price:
Advance
20,00
Mortgage
80,00
Rate: -+
Payment: 1.001 per month
The results are an indicative estimate based on the data entered and do not constitute a financial offer.
Advertiser

INTERMEDIA IMMOBILIARE
Via Niccolò Machiavelli, 47, Livorno
Show Phone
Show Mobile
Call
CONTACT

