Terraced Villa Via Don Silvio Coira, Basiglio
€ 435.000Villa a schiera in vendita
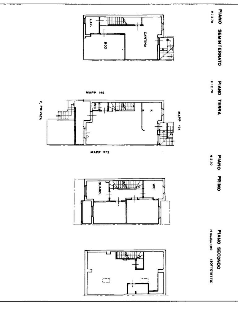
Proponiamo in vendita villa a schiera su tre piani di 200 mq con giardino. L'immobile, situato a Basiglio, in un contesto curato e tranquillo, si compone di: ingresso con ampio soggiorno, cucina abitabile e bagno al primo piano, due camere da letto matrimoniali ed un secondo bagno finestrato al piano superiore ed all'ultimo piano una spaziosa mansarda. Di pertinenza una cantina ed un box singolo.
Main data
| Reference | 61172712 |
| Ad date | 05/02/2026 |
| Contract | Sale |
| Typology | Terraced Villa |
| Surface | 200 m2 |
| Locals | 5 (5 other), 2 bathrooms |
| Plan | 1 from 3 totals |
Costs
| Price | 435.000 € |
| Price per m2 | 2.175 €/m2 |
| Condominium fees | €250,00/month |
Energy efficiency
| Year built | 1981 |
| Heating | Autonomous |
| Energy rating | D |
| Energy Performance Index (IPE) | - |
Floor plans
Address and map
Via Don Silvio Coira, Basiglio
Mortgage calculation
Selling price:
Advance
20,00
Mortgage
80,00
Rate: -+
Payment: 1.244 per month
The results are an indicative estimate based on the data entered and do not constitute a financial offer.
Advertiser
Call
CONTACT

