Four-room apartment Località Calapiccola, Monte Argentario
€ 530.000Appartamento Cala Piccola Argentario
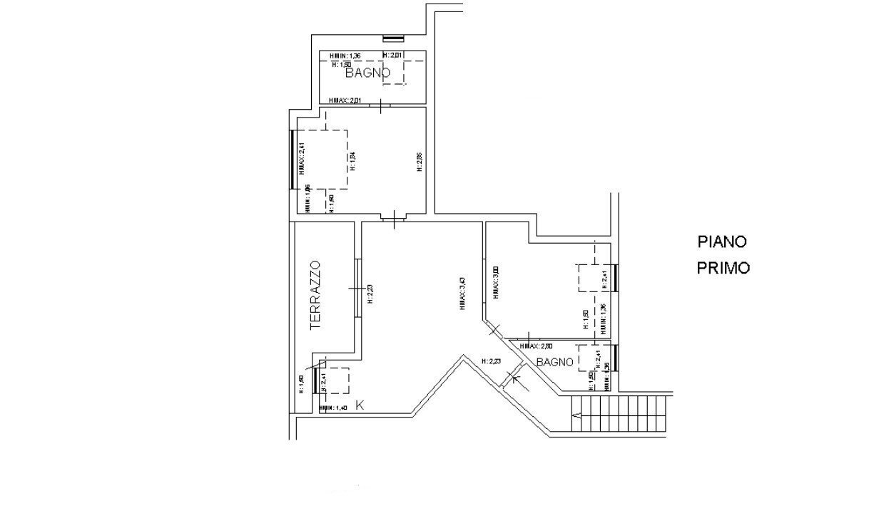
Appartamento a Cala Piccola - Monte Argentario All’interno dell’esclusivo complesso residenziale privato di Cala Piccola, elegante appartamento con splendida vista panoramica sull’Isola del Giglio e sull’isolotto dell'Argentarola. L’immobile, completamente ristrutturato nel 2024, con ingresso indipendente, è composto da un piccolo ingresso, luminoso soggiorno con porta - finestra che si affaccia sulla terrazza panoramica, cucina aperta sul soggiorno ma non invasiva e con finestra, due camere da letto e due bagni. Parcheggio esterno coperto per un'automobile. L’appartamento è dotato di impianto autonomo di riscaldamento e raffrescamento con pompa di calore, per il massimo comfort in ogni stagione. Servizi esclusivi La proprietà fa parte del Consorzio e della Cooperativa di Cala Piccola, che garantisce ai soci l’accesso riservato al prestigioso stabilimento balneare privato. Incluso nella quota sociale: • ombra riservata per 4 persone, • sdraio, materassini, cabina, • servizio bar e ristorante, L’accesso allo stabilimento è consentito in auto solo ai soci, con sbarra elettronica in ingresso. In alternativa all’utilizzo dei mezzi propri, il Consorzio mette a disposizione dei soci un servizio gratuito di navetta, con corse di andata e ritorno ogni ora. Lo stabilimento è aperto dal 1° giugno al 30 settembre di ogni anno. Il ristorante, fino al 30 di ottobre. Spese condominiali Le spese annuali ammontano a circa € 2.000,00, salvo conguaglio: • € 1.000,00 per il Consorzio (comprensivi di manutenzione strade, pulizia dei terreni, prevenzione incendi, consumo privato di acqua – il Consorzio è proprietario dell’acquedotto), • € 1.000,00 per l’utilizzo dello stabilimento balneare. Nota legale Le informazioni e le planimetrie fornite sono da considerarsi puramente indicative e non costituiscono elemento contrattuale. Visita il sito www.studiogizzi.it per altre proposte in vendita o locazione.
Main data
| Reference | 5262 |
| Ad date | 03/02/2026 |
| Contract | Sale |
| Typology | Apartment |
| Surface | 79 m2 |
| Locals | 4 (2 bedrooms, 2 other), 2 bathrooms, kitchen semi habitable |
| Plan | 1 from 3 totals |
| Construction type | Signorile |
| Number of balconies | 1 |
| Garage | Absent |
| Furniture | Partial |
Costs
| Price | 530.000 € |
| Price per m2 | 6.709 €/m2 |
| Condominium fees | €1,00/month |
Energy efficiency
| Year built | 1960 |
| Status | Good |
| Heating | Autonomous |
| Energy rating | G |
| Energy Performance Index (IPE) | 175 kWh/m2 year |
Floor plans
Address and map
Località Calapiccola, Monte Argentario
Mortgage calculation
Selling price:
Advance
20,00
Mortgage
80,00
Rate: -+
Payment: 1.516 per month
The results are an indicative estimate based on the data entered and do not constitute a financial offer.
Advertiser
Call
CONTACT


