Three-room apartment via Filippo Abbiati, 2, Milano
€ 210.000Trilocale - Ad.ze Via Dolci - San Siro
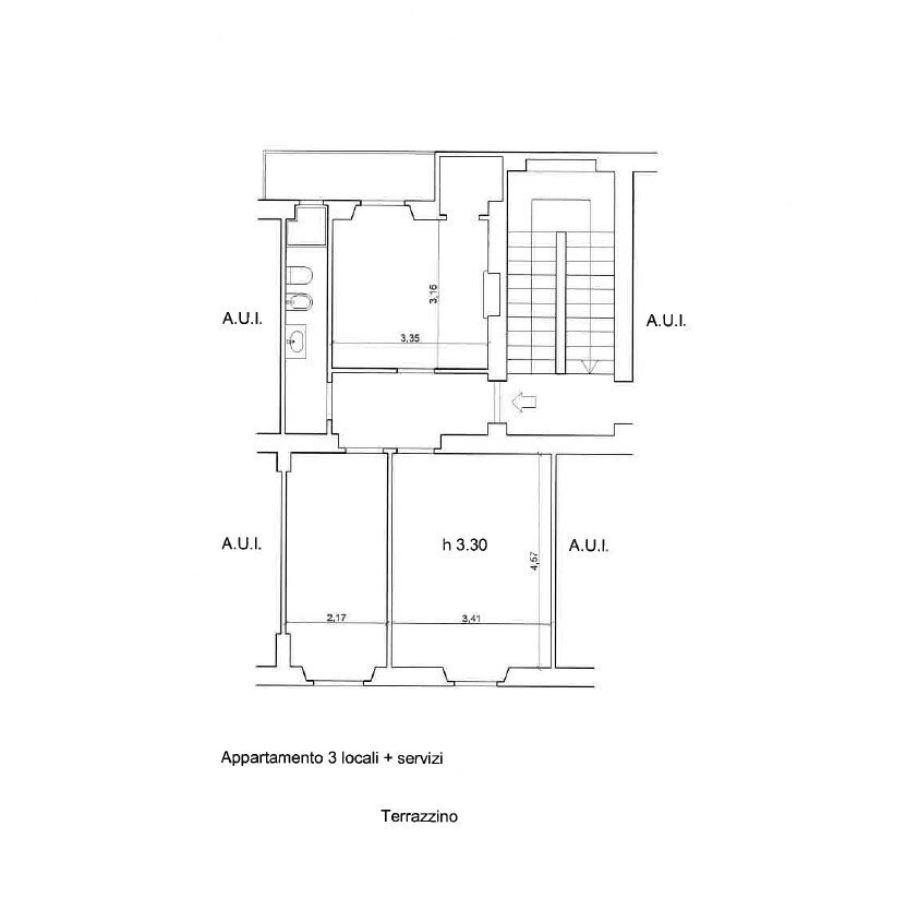
Nella zona di San Siro, proponiamo in vendita un trilocale di 62 mq situato al secondo piano di uno stabile signorile non dotato di ascensore. L’appartamento, caratterizzato da una distribuzione funzionale degli spazi, rappresenta un’ottima opportunità per chi desidera personalizzare la propria abitazione. L'immobile è composto da un ingresso che conduce alla zona giorno, con soggiorno, cucinotto e accesso al balcone affacciato sul giardino condominiale. La zona notte comprende due camere da letto e un bagno finestrato. Completa la proprietà un solaio di pertinenza. Questa proprietà è ideale sia come residenza principale che come investimento, trovandosi in una delle aree più ricercate di Milano, ottimamente servita da negozi, servizi e mezzi di trasporto pubblico. Per chi fosse interessato a un intervento di riqualificazione, è disponibile un’ipotesi progettuale volta a ottimizzare gli spazi per la massima fruibilità. Milano | San Siro | € 210.000,00 | 62m² Le informazioni sono indicative e potrebbero contenere errori; non hanno valore contrattuale. Details are indicative and may contain errors; they are not contractually binding.
Main data
| Reference | 17700 |
| Ad date | 02/02/2026 |
| Contract | Sale |
| Typology | Apartment |
| Surface | 62 m2 |
| Locals | 3 (2 bedrooms, 1 other), 1 bathroom, kitchen small kitchen |
| Plan | 2 from 4 totals |
| Construction type | Signorile |
| Number of balconies | 1 |
| Garage | Absent |
Costs
| Price | 210.000 € |
| Price per m2 | 3.387 €/m2 |
| Condominium fees | €150,00/month |
Energy efficiency
| Year built | 1935 |
| Status | Good |
| Heating | Centralized |
| Energy rating | D |
| Energy Performance Index (IPE) | 102 kWh/m2 year |
Floor plans
Address and map
via Filippo Abbiati, 2, Milano
Mortgage calculation
Selling price:
Advance
20,00
Mortgage
80,00
Rate: -+
Payment: 601 per month
The results are an indicative estimate based on the data entered and do not constitute a financial offer.
Advertiser

Umbria srl
viale abruzzi 4, Milano
Show Phone
Call
CONTACT

