Three-room apartment Viale Dante Alighieri 27, Sestri Levante
€ 395.000Appartamento - Bilocale a Sestri Levante
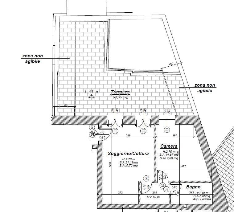
(Rif. 19) Sestri Levante, Corso Colombo: zona centralissima con tutti i servizi "sotto casa" e il mare a meno di 200 metri. Nel cuore del centro storico, proponiamo in vendita appartamento di mq 67 commerciali (mq 46 calpestabili), al primo piano con ascensore, costituito da ingresso in soggiorno con angolo cottura, camera (entrambi con accesso al terrazzo abitabile), bagno. Riscaldamento autonomo. L'intero condominio, frutto di una recente ristrutturazione, presenta eleganti finiture di pregio. La vendita dell'immobile è legata all'acquisto di un posto auto (+ € 27'000, in Via Costantino Raffo), o di un box auto (+ € 55'000, nel Piazzale della Stazione).
Main data
| Reference | 19 |
| Ad date | 02/02/2026 |
| Contract | Sale |
| Typology | Apartment |
| Surface | 67 m2 |
| Locals | 3 (1 bedroom, 2 other), 1 bathroom |
| Plan | 1 totals |
| Number of terraces | 1 |
Costs
| Price | 395.000 € |
| Price per m2 | 5.896 €/m2 |
Energy efficiency
| Energy rating | In the calculation phase |
Floor plans
Address and map
Viale Dante Alighieri 27, Sestri Levante
Mortgage calculation
Selling price:
Advance
20,00
Mortgage
80,00
Rate: -+
Payment: 1.130 per month
The results are an indicative estimate based on the data entered and do not constitute a financial offer.
Advertiser

Immobiliare Arbasetti
Corso C. Colombo 84, Sestri Levante
Show Phone
Show Mobile
Call
CONTACT

