Semi-detached house Via don cocchi, Druento
€ 209.000Casa semindipendente in vendita
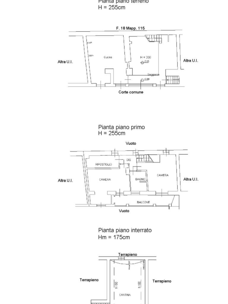
DRUENTO CENTRO STORICO. NESSUNA SPESA CONDOMINIALE. PORZIONE ESTERNA DI GIARDINO. Nel cuore del Centro Storico di Druento proponiamo in vendita una casa semindipendente con porzione esterna di giardino ad uso esclusivo. Dalla porta d'ingresso un soggiorno doppio caratterizza la zona giorno per luminosità ed ampiezza. A completare il piano è presente una cucina abitabile di generosa metratura anch'essa luminosa e dotata di portafinestra con affaccio diretto sul giardino, perfetto per momenti conviviali in famiglia. Al primo e ultimo piano sono presenti due camere da letto di cui una matrimoniale ; entrambe dotate di finestra e portafinestra con balcone comunicante su tutto il primo piano. Caratterizza il piano una cabina armadi posta a fianco della camera da letto matrimoniale. Completa la zona notte un bagno dotato di box doccia e finestra completamente ristrutturato nel 2020. Al piano seminterrato è presente un locale ad uso cantina caratterizzato da mattoni a volta. Il riscaldamento è autonomo dotato di termo-stufa collegata direttamente ai radiatori dell'immobile. La proprietà comprende un posto auto privato e l'assenza di spese condominiali rende perfetta la gestione dell'immobile.
Main data
| Reference | 61171092 |
| Ad date | 03/02/2026 |
| Contract | Sale |
| Typology | Semi-detached house |
| Surface | 120 m2 |
| Locals | 4 (4 other), 1 bathroom |
| Plan | 1 from 2 totals |
Costs
| Price | 209.000 € |
| Price per m2 | 1.742 €/m2 |
Energy efficiency
| Year built | 1960 |
| Heating | Autonomous |
| Heating Power Type | Methane |
| Energy rating | D |
| Energy performance index (EP GL, REN ) | 34.23 kWh/m3 year |
| Energy performance index (EP GL, NREN ) | 143.54 kWh/m3 year |
Floor plans
Video
Address and map
Via don cocchi, Druento
Mortgage calculation
Selling price:
Advance
20,00
Mortgage
80,00
Rate: -+
Payment: 598 per month
The results are an indicative estimate based on the data entered and do not constitute a financial offer.
Advertiser
Call
CONTACT

