Shop Viale Teresa Orelli, Galliate
€ 49.000Negozio in vendita
VENDESI NEGOZIO SU STRADA – OTTIMA VISIBILITÀ
In posizione strategica e di forte passaggio, vi proponiamo un negozio con ampia vetrina e bellissima esposizione, ideale per attività commerciali, showroom o ufficio aperto al pubblico.
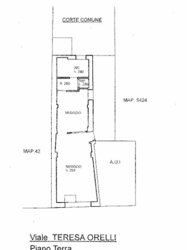
L’immobile è composto da:
Due locali luminosi e ben distribuiti
Sgabuzzino comodo come deposito o archivio
Ampio bagno
Ottima soluzione per chi cerca visibilità, funzionalità e versatilità in un contesto facilmente accessibile.
Ideale per diverse tipologie di attività Per maggiori informazioni o per fissare una visita, contattare senza impegno.
In posizione strategica e di forte passaggio, vi proponiamo un negozio con ampia vetrina e bellissima esposizione, ideale per attività commerciali, showroom o ufficio aperto al pubblico.
L’immobile è composto da:
Due locali luminosi e ben distribuiti
Sgabuzzino comodo come deposito o archivio
Ampio bagno
Ottima soluzione per chi cerca visibilità, funzionalità e versatilità in un contesto facilmente accessibile.
Ideale per diverse tipologie di attività Per maggiori informazioni o per fissare una visita, contattare senza impegno.
Main data
| Reference | 61168900 |
| Ad date | 29/01/2026 |
| Contract | Sale |
| Typology | Shop |
| Surface | 50 m2 |
| Locals | 2 (2 other), 1 bathroom |
| Plan | 2 totals |
Costs
| Price | 49.000 € |
| Price per m2 | 980 €/m2 |
Energy efficiency
| Year built | 1960 |
| Energy rating | C |
| Energy performance index (EP GL, REN ) | 122.66 kWh/m3 year |
| Energy performance index (EP GL, NREN ) | 216.66 kWh/m3 year |
Floor plans
Address and map
Viale Teresa Orelli, Galliate
Mortgage calculation
Selling price:
Advance
20,00
Mortgage
80,00
Rate: -+
Payment: 140 per month
The results are an indicative estimate based on the data entered and do not constitute a financial offer.
Advertiser
Call
CONTACT

